ZOOM板橋大山
508
最終募集時の賃料
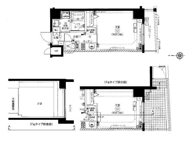
12.6万円
築8年
1K
31.5m²
東京都板橋区熊野町36-8
最終更新日: 2026年3月4日
交通アクセス
大山
8分
設備・特徴
2階以上
ペット相談可
オートロック
エアコン
バス・トイレ別
室内洗濯機置き場
独立洗面台
浴室乾燥機
モニター付きインターホン
防犯カメラ
2人入居可
管理会社
プロパティエージェント株式会社
Hokinawaとは
Hokinawaは仲介手数料0円のオンライン不動産サービスです。管理会社から直接届く最新の空室情報をリアルタイムで確認し、気に入った物件はダイレクトに申し込み。押し売りや無断での電話・メールによる営業は一切行っておりません。
仲介手数料 0円
通常1ヶ月分が不要
来店不要
オンライン完結
ダイレクト申し込み
気に入ったらそのまま手続き
エリア情報
東武東上線の大山駅(東京都板橋区)は、池袋の手前にある生活密着の駅で、ハッピーロード大山を中心とした昭和的な商店街の風景が町の顔になっています。昔ながらの惣菜屋や鮮魚店、定食屋や居酒屋が並び、昼は買い物客、夜は飲み歩きで賑わうローカルな食文化が色濃く残ります。日常の買い物や下町風情を楽しむ拠点として地域に根付いた駅です。






