カーサラスク目白台
1002
最終募集時の賃料
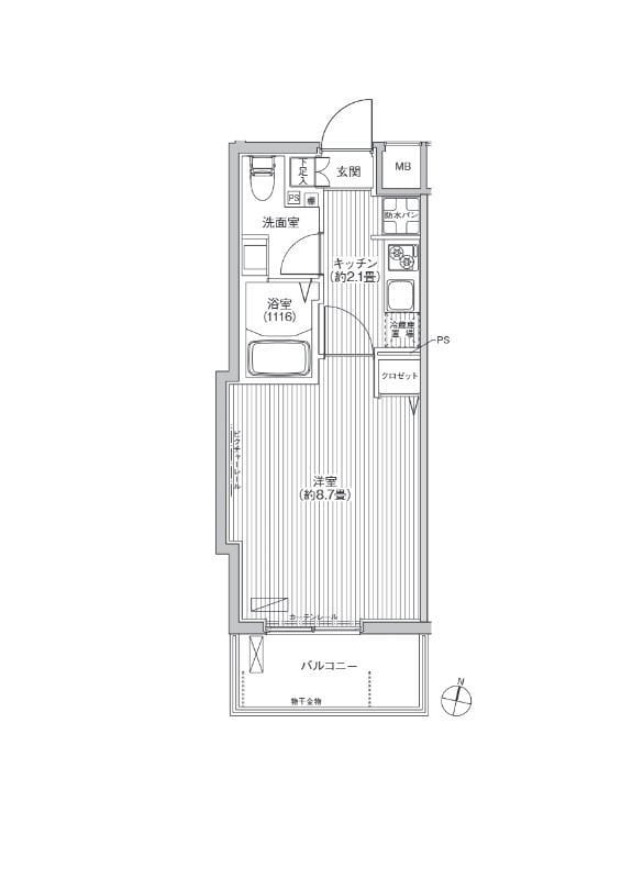
16.7万円
築11年
1LDK
40.5m²
東京都文京区目白台2丁目6-15
最終更新日: 2026年4月15日
交通アクセス
護国寺
5分
設備・特徴
2階以上
オートロック
エアコン
バス・トイレ別
室内洗濯機置き場
独立洗面台
浴室乾燥機
モニター付きインターホン
防犯カメラ
2人入居可
管理会社
株式会社 エル・イー・オー
Hokinawaとは
Hokinawaは仲介手数料0円のオンライン不動産サービスです。管理会社から直接届く最新の空室情報をリアルタイムで確認し、気に入った物件はダイレクトに申し込み。押し売りや無断での電話・メールによる営業は一切行っておりません。
仲介手数料 0円
通常1ヶ月分が不要
来店不要
オンライン完結
ダイレクト申し込み
気に入ったらそのまま手続き
エリア情報
護国寺駅(東京メトロ有楽町線)は文京区東部、豊島区との境に近い場所にあり、駅名の由来でもある護国寺の緑が街の景色を作っています。周辺は低層住宅と昔ながらの商店や喫茶店が残る落ち着いた街並みで、寺社まわりの散策路や日常の買い物が日常に溶け込んでいます。ローカルな生活拠点としての性格を持ちながら、有楽町線で都心・副都心方面への移動に便利な駅です。









