ジオ板橋大山
828
28万円
仲介手数料0円
築1年
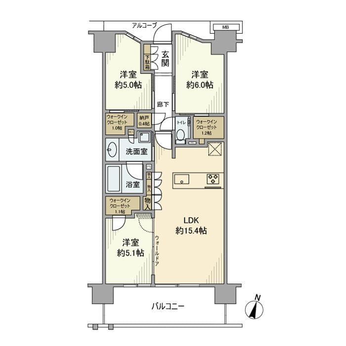
3LDK
68.4m²
東向き
東京都板橋区仲町2-1
掲載開始日: 2026年3月14日
(1ヶ月前)
申請・内見予約・メッセージにはログインが必要です。最短1分で完了。
月額費用
家賃 | 28万円 |
管理費・共益費 | 1万円 |
月額合計 | 29万円 |
|---|
初期費用
仲介手数料 | 0円 |
敷金 | 29万円 |
礼金 | 29万円 |
保証料 | 14.5万円 |
合計金額(概算) | 72.5万円 |
|---|
通常、鍵交換・クリーニング・火災保険・安心サポートなどの追加費用が別途発生します。詳細はお問い合わせください。
入居情報
入居開始予定日
2026年4月15日以降
掲載開始日
2026年3月14日
(1ヶ月前)
交通アクセス
大山
6分
設備・特徴
2階以上
オートロック
バス・トイレ別
室内洗濯機置き場
独立洗面台
浴室乾燥機
モニター付きインターホン
管理会社
株式会社リロケーション・ジャパン 留守宅
似た条件の物件
Hokinawaとは
Hokinawaは仲介手数料0円のオンライン不動産サービスです。管理会社から直接届く最新の空室情報をリアルタイムで確認し、気に入った物件はダイレクトに申し込み。押し売りや無断での電話・メールによる営業は一切行っておりません。
仲介手数料 0円
通常1ヶ月分が不要
来店不要
オンライン完結
ダイレクト申し込み
気に入ったらそのまま手続き
エリア情報
東武東上線の大山駅(東京都板橋区)は、池袋の手前にある生活密着の駅で、ハッピーロード大山を中心とした昭和的な商店街の風景が町の顔になっています。昔ながらの惣菜屋や鮮魚店、定食屋や居酒屋が並び、昼は買い物客、夜は飲み歩きで賑わうローカルな食文化が色濃く残ります。日常の買い物や下町風情を楽しむ拠点として地域に根付いた駅です。
