FISS
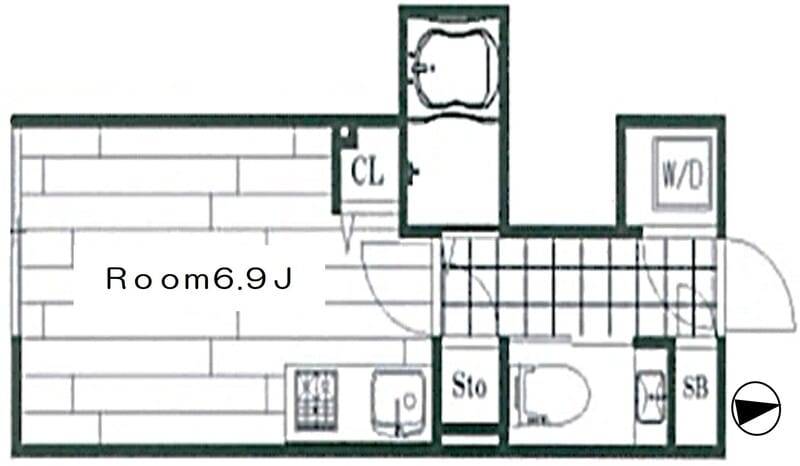
305
最終募集時の賃料
13.5万円
築18年
1R
25.3m²
東京都新宿区百人町2丁目8-13
最終更新日: 2026年2月18日
交通アクセス
新大久保
2分
大久保
6分
設備・特徴
2階以上
ペット相談可
オートロック
エアコン
バス・トイレ別
室内洗濯機置き場
浴室乾燥機
モニター付きインターホン
防犯カメラ
2人入居可
管理会社
紬アセット株式会社
似た条件の物件
Hokinawaとは
Hokinawaは仲介手数料0円のオンライン不動産サービスです。管理会社から直接届く最新の空室情報をリアルタイムで確認し、気に入った物件はダイレクトに申し込み。押し売りや無断での電話・メールによる営業は一切行っておりません。
仲介手数料 0円
通常1ヶ月分が不要
来店不要
オンライン完結
ダイレクト申し込み
気に入ったらそのまま手続き
エリア情報
JR山手線の新大久保駅(新宿区)は、山手線内でコリアタウンと親しまれる商業エリアの玄関口です。駅前から細い路地に広がる韓国料理店やK-POP関連のショップが目立ち、同時に多国籍な飲食店や食品店が混ざり合うにぎやかな街並みが特徴です



