新着
CREALpremier大島
106
10.3万円
仲介手数料0円
築5年
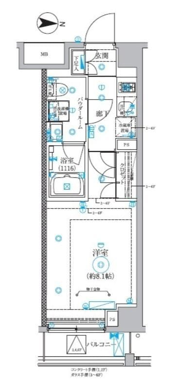
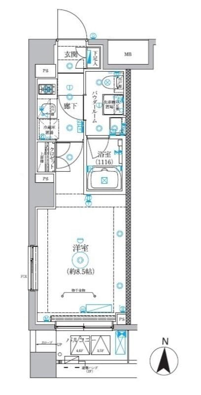
1K
25.1m²
東向き
東京都江東区大島8丁目27-12
掲載開始日: 2026年4月16日
(昨日)
申請・内見予約・メッセージにはログインが必要です。最短1分で完了。
月額費用
家賃 | 10.3万円 |
管理費・共益費 | 1万円 |
月額合計 | 11.3万円 |
|---|
初期費用
仲介手数料 | 0円 |
敷金 | 0円 |
礼金 | 0円 |
保証料 | 5.65万円 |
合計金額(概算) | 5.65万円 |
|---|
通常、鍵交換・クリーニング・火災保険・安心サポートなどの追加費用が別途発生します。詳細はお問い合わせください。
入居情報
入居開始予定日
2026年6月21日以降
掲載開始日
2026年4月16日
(昨日)
交通アクセス
東大島
8分
大島
9分
設備・特徴
オートロック
エアコン
バス・トイレ別
室内洗濯機置き場
独立洗面台
浴室乾燥機
モニター付きインターホン
管理会社
株式会社 トラストアドバイザーズ
Hokinawaとは
Hokinawaは仲介手数料0円のオンライン不動産サービスです。管理会社から直接届く最新の空室情報をリアルタイムで確認し、気に入った物件はダイレクトに申し込み。押し売りや無断での電話・メールによる営業は一切行っておりません。
仲介手数料 0円
通常1ヶ月分が不要
来店不要
オンライン完結
ダイレクト申し込み
気に入ったらそのまま手続き
エリア情報
東大島駅は都営新宿線の江東区側にある駅で、運河や緑地が点在する下町的な居住エリアの入口にあたります。周辺は昔ながらの商店街や定食屋、生活密着の小売店が残る一方で、マンションや住宅街も混在する日常的な町並みが広がります。都心への通勤路として利用されるとともに、川沿いの散策や地域の商店利用での利用が目立つ駅です。












