ザ・湾岸タワーレックスガーデン
1716
最終募集時の賃料
24.5万円
築13年
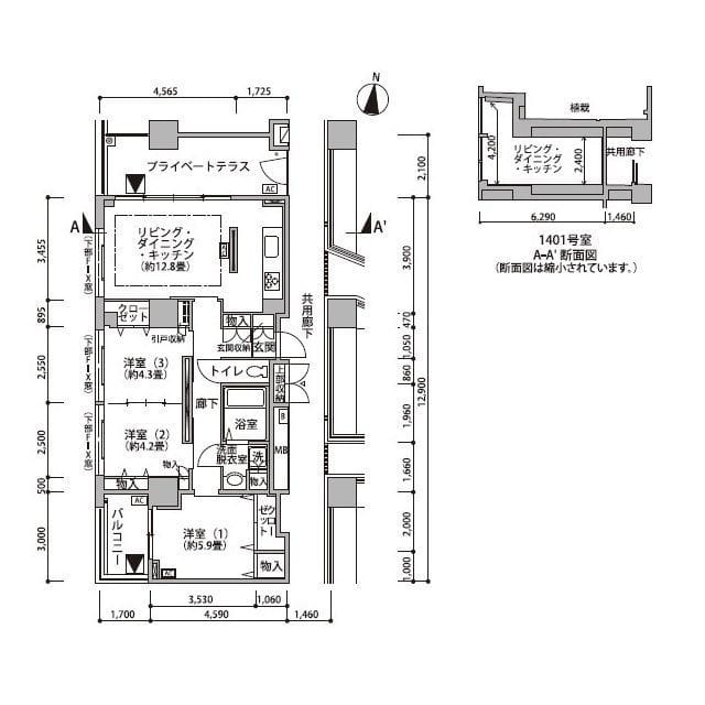
2LDK
64.3m²
東京都江東区東雲2丁目2-14
最終更新日: 2026年1月20日
交通アクセス
駅情報なし
設備・特徴
2階以上
管理会社
三井不動産リアルティ株式会社 ららぽーと豊洲センター
Hokinawaとは
Hokinawaは仲介手数料0円のオンライン不動産サービスです。管理会社から直接届く最新の空室情報をリアルタイムで確認し、気に入った物件はダイレクトに申し込み。押し売りや無断での電話・メールによる営業は一切行っておりません。
仲介手数料 0円
通常1ヶ月分が不要
来店不要
オンライン完結
ダイレクト申し込み
気に入ったらそのまま手続き





