XEBEC亀戸
801
12.9万円
仲介手数料0円
築11年
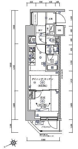
1K
28.1m²
北向き
東京都江東区亀戸5丁目27-10
亀戸水神4分
掲載開始日: 2026年3月1日
(1ヶ月前)
申請・内見予約・メッセージにはログインが必要です。最短1分で完了。
月額費用
家賃 | 12.9万円 |
管理費・共益費 | 1.5万円 |
月額合計 | 14.4万円 |
|---|
初期費用
仲介手数料 | 0円 |
敷金 | 0円 |
礼金 | 14.4万円 |
保証料 | 7.2万円 |
合計金額(概算) | 21.6万円 |
|---|
通常、鍵交換・クリーニング・火災保険・安心サポートなどの追加費用が別途発生します。詳細はお問い合わせください。
入居情報
入居開始予定日
2026年4月21日以降
掲載開始日
2026年3月1日
(1ヶ月前)
交通アクセス
亀戸水神
4分
亀戸
8分
設備・特徴
2階以上
ペット相談可
オートロック
エアコン
バス・トイレ別
室内洗濯機置き場
独立洗面台
浴室乾燥機
モニター付きインターホン
防犯カメラ
2人入居可
管理会社
要確認
Hokinawaとは
Hokinawaは仲介手数料0円のオンライン不動産サービスです。管理会社から直接届く最新の空室情報をリアルタイムで確認し、気に入った物件はダイレクトに申し込み。押し売りや無断での電話・メールによる営業は一切行っておりません。
仲介手数料 0円
通常1ヶ月分が不要
来店不要
オンライン完結
ダイレクト申し込み
気に入ったらそのまま手続き
エリア情報
亀戸水神駅は東武亀戸線の小さな停留所で、江東区側の住宅地にあり墨田区との境界にも近い位置にあります。周辺は下町の生活感が残る商店や小さな飲食店が並び、地名の由来となる水神を祀る小さな社や隅田川の河岸へ気軽に出られるのが特徴です。短い路線の中のローカルな乗換点として、近隣駅への短距離移動や日常の買い物、散歩の出発点として利用される落ち着いた地域です。






