W Comfort Towers EAST 42階
35万円/15,000円/入力なし
最終募集時の賃料
35万円
築21年
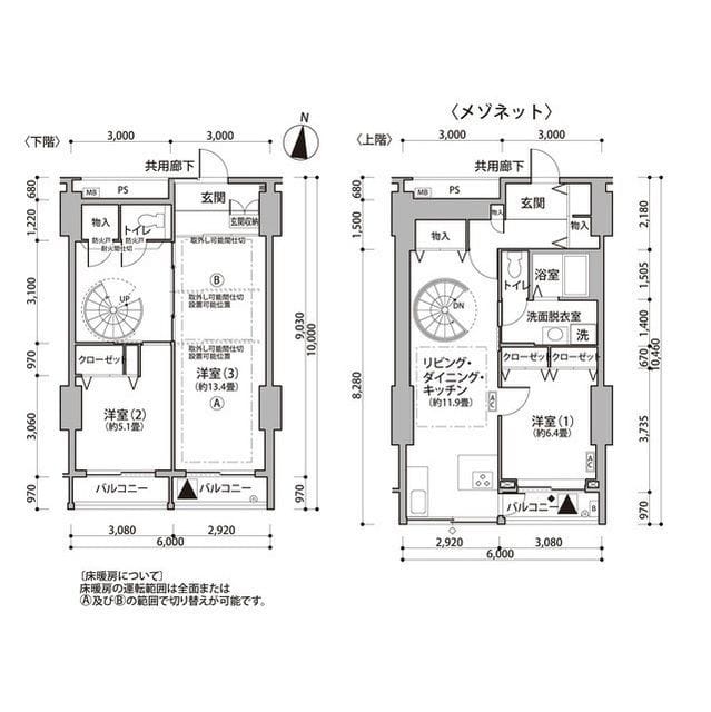
3LDK
110.7m²
北東向き
東京都江東区東雲1丁目9-32
最終更新日: 2026年3月31日
交通アクセス
辰巳
6分
設備・特徴
2階以上
ペット相談可
オートロック
エアコン
バス・トイレ別
独立洗面台
モニター付きインターホン
防犯カメラ
2人入居可
床暖房
管理会社
株式会社 Lotus Link 管理部
Hokinawaとは
Hokinawaは仲介手数料0円のオンライン不動産サービスです。管理会社から直接届く最新の空室情報をリアルタイムで確認し、気に入った物件はダイレクトに申し込み。押し売りや無断での電話・メールによる営業は一切行っておりません。
仲介手数料 0円
通常1ヶ月分が不要
来店不要
オンライン完結
ダイレクト申し込み
気に入ったらそのまま手続き
エリア情報
辰巳駅は東京メトロ有楽町線の江東区辰巳にある駅で、埋立地に広がる住宅街の交通結節点です。周辺は中高層マンションや団地、運河や橋が織りなす景観が目立ち、湾岸方面や有明・豊洲方面への移動に使われます。小さな商店や公園、保育施設が点在し、海風や季節の景色が身近に感じられる落ち着いた暮らしの場の雰囲気があります。





