Totsu Residence Shiodome
1202
最終募集時の賃料
10.8万円
築23年
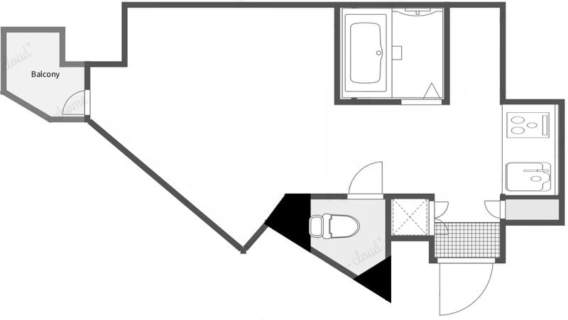
1R
18m²
東京都港区新橋6丁目23-7
最終更新日: 2025年12月20日
交通アクセス
大門
5分
大門
5分
御成門
5分
設備・特徴
2階以上
オートロック
エアコン
バス・トイレ別
室内洗濯機置き場
管理会社
東通コミュニティ株式会社
Hokinawaとは
Hokinawaは仲介手数料0円のオンライン不動産サービスです。管理会社から直接届く最新の空室情報をリアルタイムで確認し、気に入った物件はダイレクトに申し込み。押し売りや無断での電話・メールによる営業は一切行っておりません。
仲介手数料 0円
通常1ヶ月分が不要
来店不要
オンライン完結
ダイレクト申し込み
気に入ったらそのまま手続き
エリア情報
御成門駅(都営三田線)は港区芝のエリアにあり、駅名の由来となった江戸時代の御成門周辺とオフィス街が接する地下鉄駅です。周辺は昼間にビジネス客向けの小さな飲食店やカフェが並び、夜は昔ながらの居酒屋や定食屋が目立つ落ち着いた町並みが残ります。芝公園や増上寺、東京タワー方面へのアクセス拠点として観光客と通勤客が混在するエリアです。






