戸越銀座プレイス
0411
最終募集時の賃料
17万円
築18年
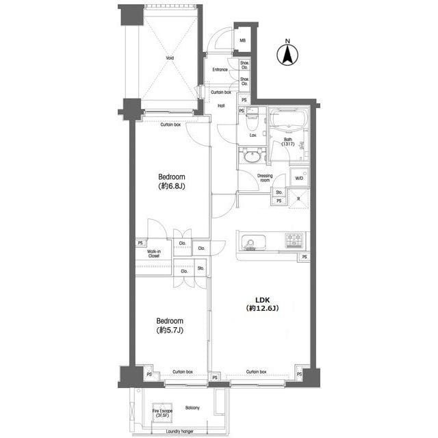
1LDK
35.2m²
東京都品川区平塚2丁目20-8
最終更新日: 2026年2月14日
交通アクセス
戸越銀座
3分
戸越
5分
設備・特徴
2階以上
ペット相談可
オートロック
エアコン
バス・トイレ別
室内洗濯機置き場
管理会社
東急住宅リース株式会社 本店
Hokinawaとは
Hokinawaは仲介手数料0円のオンライン不動産サービスです。管理会社から直接届く最新の空室情報をリアルタイムで確認し、気に入った物件はダイレクトに申し込み。押し売りや無断での電話・メールによる営業は一切行っておりません。
仲介手数料 0円
通常1ヶ月分が不要
来店不要
オンライン完結
ダイレクト申し込み
気に入ったらそのまま手続き
エリア情報
戸越銀座駅(東急池上線、品川区)は、戸越銀座商店街の代表的な入口で、昭和の名残を感じさせる食べ歩き店や総菜屋が並ぶ商店街への導線になっています。駅周辺は低層住宅と細い路地が混ざる生活地で、昔ながらの個人商店や小さな飲食店が日常風景を作っています。都心へのアクセス手段としての役割を持ちつつ、商店街の賑わいと住宅地の落ち着きが共存するエリアです。







