テラス大崎
705
最終募集時の賃料
20万円
築5年
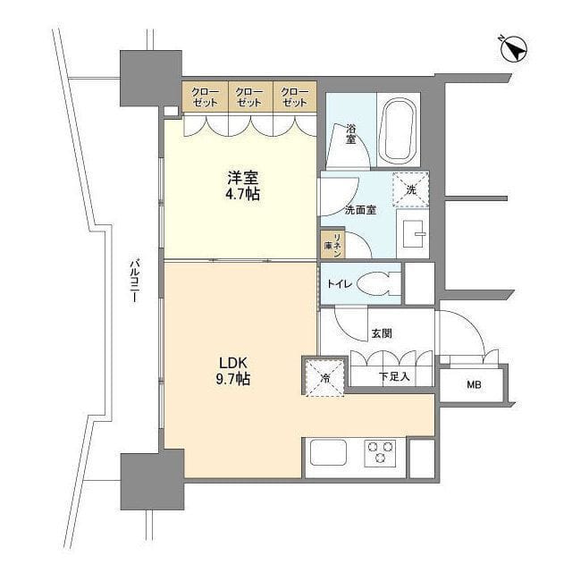
1LDK
40.6m²
東京都品川区戸越1丁目29-10
最終更新日: 2025年12月27日
交通アクセス
戸越
9分
大崎
10分
戸越銀座
11分
設備・特徴
2階以上
管理会社
三菱地所リアルエステートサービス株式会社 本社
同じ建物の他の部屋3件
募集中の部屋
募集終了の部屋
Hokinawaとは
Hokinawaは仲介手数料0円のオンライン不動産サービスです。管理会社から直接届く最新の空室情報をリアルタイムで確認し、気に入った物件はダイレクトに申し込み。押し売りや無断での電話・メールによる営業は一切行っておりません。
仲介手数料 0円
通常1ヶ月分が不要
来店不要
オンライン完結
ダイレクト申し込み
気に入ったらそのまま手続き
エリア情報
都営浅草線の戸越駅は、品川区西部の住宅地に開かれたローカルな駅で、戸越銀座の商店街や昔ながらの個人商店、銭湯などが点在する下町的な雰囲気が残るエリアの入口にあたります。低層の住宅と細い路地が入り混じる街並みで、日常使いの飲食店や八百屋、惣菜屋が暮らしに根付いています。都心方面へのアクセスを担いつつ、地域の生活圏を支える存在です。








