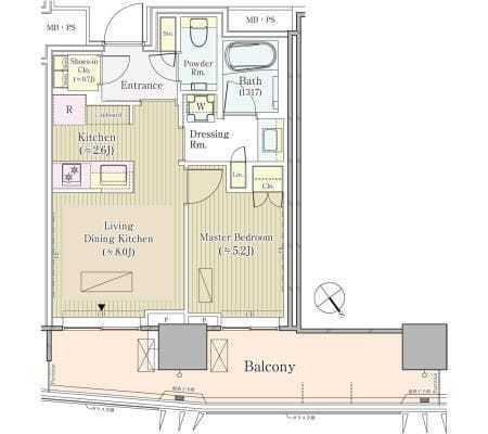
赤坂ステラビル
801
45.1万円
仲介手数料0円
築12年
1R
45.8m²
南向き
東京都港区赤坂3丁目14-7
掲載開始日: 2026年3月30日
(2週間前)
申請・内見予約・メッセージにはログインが必要です。最短1分で完了。
月額費用
家賃 | 45.1万円 |
月額合計 | 45.1万円 |
|---|
初期費用
仲介手数料 | 0円 |
敷金 | 180.4万円 |
礼金 | 49.6万円 |
保証料 | 22.6万円 |
合計金額(概算) | 252.6万円 |
|---|
通常、鍵交換・クリーニング・火災保険・安心サポートなどの追加費用が別途発生します。詳細はお問い合わせください。
入居情報
入居開始予定日
2026年4月17日以降
掲載開始日
2026年3月30日
(2週間前)
交通アクセス
赤坂
1分
設備・特徴
2階以上
エアコン
管理会社
株式会社CJS TOKYO 賃貸住宅サービス 吉祥寺ギャラリー
Hokinawaとは
Hokinawaは仲介手数料0円のオンライン不動産サービスです。管理会社から直接届く最新の空室情報をリアルタイムで確認し、気に入った物件はダイレクトに申し込み。押し売りや無断での電話・メールによる営業は一切行っておりません。
仲介手数料 0円
通常1ヶ月分が不要
来店不要
オンライン完結
ダイレクト申し込み
気に入ったらそのまま手続き





