スパシエソリデ世田谷砧
503
10.3万円
仲介手数料0円
築13年
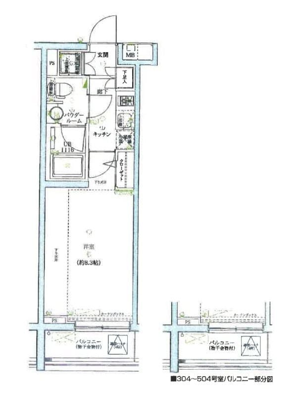
1K
25.8m²
南東向き
東京都世田谷区砧2丁目22-5
掲載開始日: 2026年4月8日
(1週間前)
月額費用
家賃 | 10.3万円 |
管理費・共益費 | 2万円 |
月額合計 | 12.3万円 |
|---|
初期費用
仲介手数料 | 0円 |
敷金 | 18.4万円 |
礼金 | 12.3万円 |
保証料 | 6.15万円 |
合計金額(概算) | 36.9万円 |
|---|
通常、鍵交換・クリーニング・火災保険・安心サポートなどの追加費用が別途発生します。詳細はお問い合わせください。
入居情報
入居開始予定日
要確認
掲載開始日
2026年4月8日
(1週間前)
交通アクセス
千歳船橋
8分
設備・特徴
2階以上
ペット相談可
エアコン
バス・トイレ別
室内洗濯機置き場
浴室乾燥機
モニター付きインターホン
管理会社
株式会社リアルワン
Hokinawaとは
Hokinawaは仲介手数料0円のオンライン不動産サービスです。管理会社から直接届く最新の空室情報をリアルタイムで確認し、気に入った物件はダイレクトに申し込み。押し売りや無断での電話・メールによる営業は一切行っておりません。
仲介手数料 0円
通常1ヶ月分が不要
来店不要
オンライン完結
ダイレクト申し込み
気に入ったらそのまま手続き
エリア情報
千歳船橋(小田急線・世田谷区)は、住宅地に溶け込んだローカル駅で、駅前の商店街に昔ながらの個人店と最近増えたカフェやベーカリーが混在する落ち着いた街並みが続きます。買い物や子育ての日常を支える店が多く、週末には家族連れや近隣住民の姿が目立ちます。小田急線の沿線駅として都心方面への通勤路でもあり、路地や坂に残る昭和期の町並みが日常の風情を伝えています






