スカイコート後楽園EAST
1004
11.4万円
仲介手数料0円
築21年
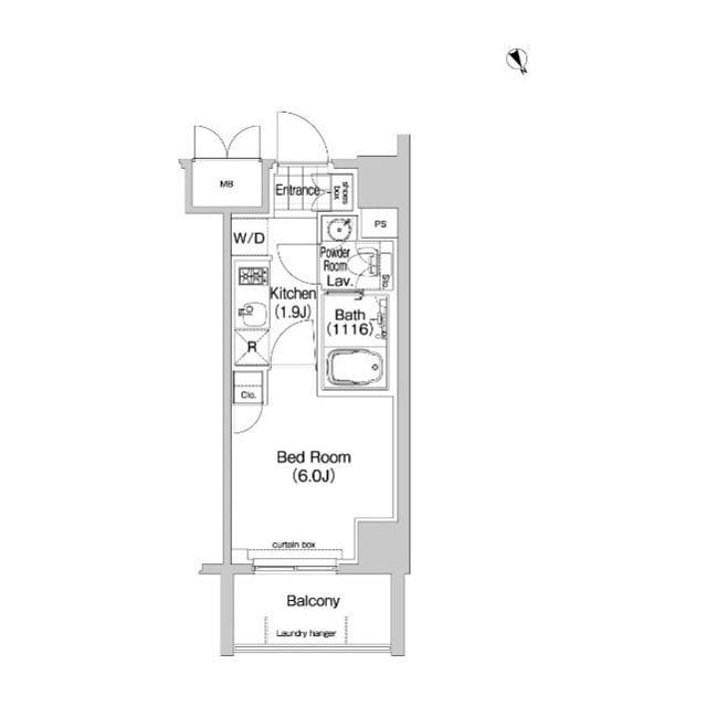
1K
20.0m²
南西向き
東京都文京区小石川4丁目1-13
掲載開始日: 2026年3月21日
(3週間前)
申請・内見予約・メッセージにはログインが必要です。最短1分で完了。
月額費用
家賃 | 11.4万円 |
管理費・共益費 | 1.1万円 |
月額合計 | 12.5万円 |
|---|
初期費用
仲介手数料 | 0円 |
敷金 | 0円 |
礼金 | 12.5万円 |
保証料 | 6.25万円 |
合計金額(概算) | 18.8万円 |
|---|
通常、鍵交換・クリーニング・火災保険・安心サポートなどの追加費用が別途発生します。詳細はお問い合わせください。
入居情報
入居開始予定日
2026年6月1日以降
掲載開始日
2026年3月21日
(3週間前)
交通アクセス
後楽園
10分
後楽園
10分
茗荷谷
12分
設備・特徴
2階以上
オートロック
2人入居可
管理会社
株式会社リブマックスプロパティマネジメント
Hokinawaとは
Hokinawaは仲介手数料0円のオンライン不動産サービスです。管理会社から直接届く最新の空室情報をリアルタイムで確認し、気に入った物件はダイレクトに申し込み。押し売りや無断での電話・メールによる営業は一切行っておりません。
仲介手数料 0円
通常1ヶ月分が不要
来店不要
オンライン完結
ダイレクト申し込み
気に入ったらそのまま手続き
エリア情報
後楽園駅は東京メトロ丸ノ内線と南北線の駅で、文京区のほぼ中心に位置し、小石川後楽園や東京ドームシティへの玄関口として利用されます。周辺は江戸期の庭園風景と大規模なレジャー施設が隣り合う独特の街並みで、観光客と地元利用が混ざる賑わいがあります。駅周辺には飲食店や小売店が点在し、散策や催事に便利な日常感が残るエリアです。






