東京スイートレジデンス
0803
最終募集時の賃料
30万円
築18年
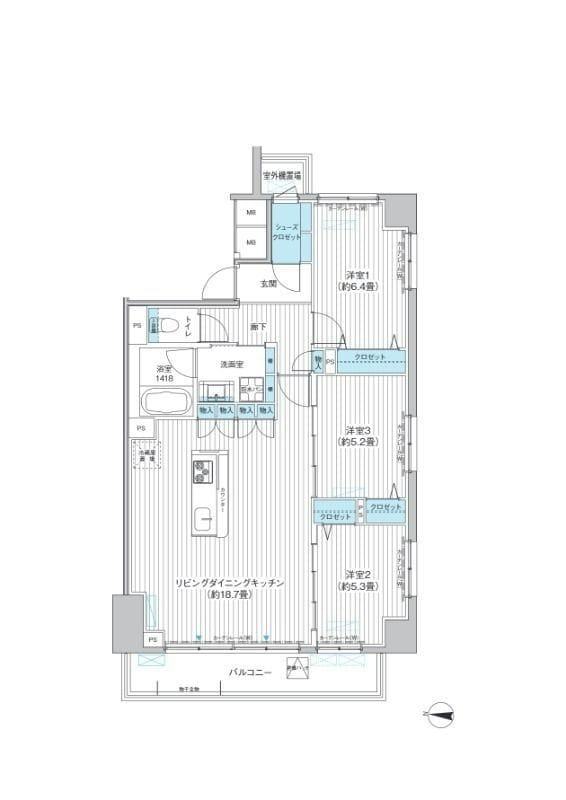
3LDK
77.2m²
入力なし
東京都江東区北砂2丁目18-2
最終更新日: 2026年4月14日
交通アクセス
西大島
12分
設備・特徴
2階以上
オートロック
室内洗濯機置き場
独立洗面台
浴室乾燥機
モニター付きインターホン
管理会社
株式会社長谷工ライブネット東京事務所
Hokinawaとは
Hokinawaは仲介手数料0円のオンライン不動産サービスです。管理会社から直接届く最新の空室情報をリアルタイムで確認し、気に入った物件はダイレクトに申し込み。押し売りや無断での電話・メールによる営業は一切行っておりません。
仲介手数料 0円
通常1ヶ月分が不要
来店不要
オンライン完結
ダイレクト申し込み
気に入ったらそのまま手続き





