SOCIETY KURAMAE
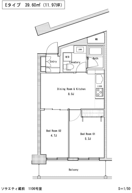
803
最終募集時の賃料
17.7万円
築38年
1LDK
39.5m²
東京都台東区蔵前3丁目7-4
最終更新日: 2026年2月3日
交通アクセス
蔵前
1分
設備・特徴
2階以上
管理会社
株式会社 エル・イー・オー
Hokinawaとは
Hokinawaは仲介手数料0円のオンライン不動産サービスです。管理会社から直接届く最新の空室情報をリアルタイムで確認し、気に入った物件はダイレクトに申し込み。押し売りや無断での電話・メールによる営業は一切行っておりません。
仲介手数料 0円
通常1ヶ月分が不要
来店不要
オンライン完結
ダイレクト申し込み
気に入ったらそのまま手続き
エリア情報
蔵前駅は都営浅草線と大江戸線が交差する、台東区と墨田区の境に位置する駅で、浅草や両国方面へのアクセス拠点として使われています。元々は倉庫地帯だった名残があり、工房やデニム・革製品の職人店、セレクトショップ、個性的なカフェが並ぶクリエイティブな街並みが特徴です。隅田川にも近く、下町の暮らしと観光の気配が程よく混ざったローカルな雰囲気が味わえます。






