ホーム

/

エリア検索

/

大田区

/

サンハイム南馬込

サンハイム南馬込

303

最終募集時の賃料

7万円

築37年
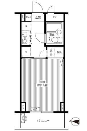
1R
20.3m²

東京都大田区南馬込6丁目31-5

都営浅草線の路線アイコン西馬込5

最終更新日: 2026年2月14日

交通アクセス

都営浅草線の路線アイコン

西馬込

5

東急池上線の路線アイコン

池上

21

設備・特徴

2階以上
オートロック
エアコン
室内洗濯機置き場
モニター付きインターホン

管理会社

株式会社日商ベックス 代々木店

エリア情報

西馬込駅で暮らす。始発の安心感と、静かな住宅街が両立する大田区の“落ち着き重視”エリア

西馬込駅は、都営浅草線の始発駅です。都心への足はしっかり確保したい。けれど、住まいの周辺には落ち着いた空気があってほしい——そんな人に、この駅はとても相性がいい場所です。

駅前は、華やかさを競うタイプではありません。大きな繁華街はなく、街の主役はあくまで住宅街。そのぶん夜は穏やかで、帰宅後に自然と気持ちを切り替えやすいのが西馬込らしさです。大田区らしい生活感を備えながら、馬込文士村の系譜を感じさせる文化的な背景もあり、ただ眠るためだけのベッドタウンでは終わらない奥行きがあります。

一方で、この街を選ぶうえで見過ごせないのが坂の多さです。駅から物件までのルートによって日々の負担はかなり変わるため、内見では地図上の距離だけでなく、実際の高低差まで確かめておきたいところです。

西馬込駅の最大の強みは「始発駅」であること

西馬込に住む価値をひと言で表すなら、やはり始発駅ならではの安定感に尽きます。

都営浅草線は新橋、日本橋方面へつながり、さらに京急線方面との相互直通もあります。通勤先によっては乗り換えを抑えやすく、動線をシンプルに組み立てやすい路線です。しかも西馬込はその起点。朝の通勤で座れる可能性があること、電車の流れを読みやすいことは、毎日の移動において想像以上に効いてきます。

特に相性がいいのは、出社時間が早い人、通勤ストレスを減らしたい人、残業後もできるだけまっすぐ帰りたい人。沿線のなかでも、派手さより実利を重視するなら、西馬込はかなり堅実な選択肢です。

街の雰囲気は、静かで地に足がついている

西馬込の街並みは、駅前商業のにぎわいで引っ張るタイプではありません。飲食店や買い物スポットが密集しているというより、住宅地としての落ち着きが前面に出ています。

この空気感がしっくりくるのは、たとえば次のような人です。

  • 休日まで人混みに囲まれたくない
  • 帰宅後は静かな街で過ごしたい
  • 大型商業施設より、日常の動線の整い方を重視したい
  • 子育てや在宅勤務を見据えて、住環境を優先したい

反対に、駅前にカフェや商業施設が集まり、降りた瞬間から街のにぎわいを感じたい人には、やや地味に映るかもしれません。西馬込は「便利でにぎやか」より、「静かで整っている」に重心のある住宅地です。

家賃相場は、都心アクセスを考えると現実的

西馬込駅周辺の家賃相場の目安は、ワンルーム・1Kで8.5万~10.5万円前後、1LDKで11.5万~17万円前後、ファミリー向けで18万~30万円前後です。

始発駅という交通面の強みがあり、大田区の落ち着いた住宅街としても評価されているため、極端に安いエリアではありません。ただ、山手線内側の人気駅と比べれば、住環境とのバランスは取りやすい価格帯です。

単身者にとっては「静けさと通勤効率にお金を払う街」。二人暮らしやファミリーにとっては「都心への通いやすさを保ちながら、家の周辺は穏やかにしたい人向け」と捉えるとわかりやすいでしょう。

なお、同じ西馬込でも、駅に近い平坦寄りの立地と、坂の上・坂の途中では暮らしの印象がかなり変わります。賃料だけでなく、毎日の上り下りまで含めて比較したいところです。

日常の買い物は“駅前完結型”ではなく、少し広めに捉えるのがコツ

西馬込は、駅前に何でもそろう街ではありません。このエリアで暮らすなら、買い物先は駅前だけでなく周辺まで含めて考えるのが現実的です。

価格重視で日常使いしやすい存在として頼れるのが、オーケー仲池上店。食品や日用品をまとめて買いやすく、家計を意識した暮らしと相性のいい店舗です。駅から少し距離はありますが、自転車を使える、あるいは生活動線に組み込める物件であれば満足度は高いはずです。

西馬込に合うのは、「家のすぐ下に何でもある」暮らしというより、「静かな住宅街に住みながら、必要な買い物先を使い分ける」感覚。日々の利便性を重視するなら、物件探しの段階でスーパーへの行きやすさを具体的に確認しておくと失敗しにくくなります。

文化の香りが、この街を少し特別にしている

西馬込周辺の魅力は、単なる住宅地で終わらないことです。馬込エリアには、馬込文士村の記憶が残っており、近代文学や芸術とつながる土地の背景があります。

その入口として立ち寄りやすいのが、駅から歩いて行きやすい大田区立郷土博物館。地域の歴史を知るだけでなく、この街がなぜ今のような住宅地になったのか、どのような文化の蓄積を持っているのかも見えてきます。引っ越してから地域への愛着が深まりやすい、よい存在です。

街を歩いていると、観光地のようなわかりやすさはないのに、どこか記憶に残る空気があります。西馬込は、“派手だから印象に残る街”ではなく、“背景を知るほど味わいが増す街”です。

散歩が気持ちいい。春には馬込らしさがいっそう際立つ

この街の季節感を象徴するのが、馬込桜並木通りです。春になると、西馬込らしい落ち着いた街並みに桜の華やぎが重なり、住宅地としての魅力がより鮮やかになります。

近くの桜並木公園も、日々の散歩先としてちょうどいい存在です。子どもと少し外に出たいときや、気分転換したいときにも使いやすく、派手な大公園ではないからこそ日常に自然になじみます。こうした“近所にあるちょうどよさ”が、暮らしやすさにつながっていきます。

もう少し足を伸ばすなら、池上梅園も魅力的です。四季の表情を感じられる場所が生活圏にあると、休日の過ごし方に無理がありません。遠出をしなくても季節を楽しめることは、このエリアの隠れた強みです。

医療面は、大田区内の基幹病院を視野に入れやすい

住まい選びでは、日常の便利さだけでなく、いざというときの医療アクセスも気になるものです。その点、西馬込は大田区内の大きな医療拠点を意識しやすい立地にあります。

東京都立荏原病院は、周辺で暮らす人にとって存在感のある総合病院です。さらに、東邦大学医療センター大森病院のような大学病院も区内にあり、医療資源の選択肢があることは安心材料になります。

もちろん、日常の通院は近隣クリニックとの相性も重要です。ただ、重めの診療や専門性が必要になったときの受け皿が地域にあることは、単身者にもファミリーにも心強い要素です。

子育て世帯には、“静かさ”そのものが価値になる

西馬込は、子育て環境を派手にアピールする街ではありません。それでも実際には、相性のいい要素がそろっています。まず、住宅街そのものが落ち着いていること。加えて、保育施設としてにじいろ保育園西馬込グローバルキッズ西馬込園のような受け皿があることです。

さらに、馬込図書館が徒歩圏で使いやすいのも見逃せません。子どもの読み聞かせや学習環境としてはもちろん、在宅ワークの気分転換や、静かな時間を持ちたい大人にとっても役立つ場所です。

ショッピングモールを中心に子育ての動線を組む街というより、保育園、図書館、公園を日常のなかで使いながら、家の近くで落ち着いて暮らしを整えていく街。西馬込は、そんな子育てを望む家庭に向いています。

医療・看護系の学びや仕事とも相性がいい

このエリアは、いわゆる大学街の印象こそ強くありませんが、東邦大学大森キャンパス昭和医科大学洗足キャンパスといった医療教育系の拠点を生活圏として見やすいのが特徴です。

そのため、医療・看護系の学生や、病院・医療関連職で大田区内に勤務する人にとっては検討しやすいエリアです。繁華街の近さよりも、通学・通勤の落ち着きや生活の整えやすさを重視する人には、特にフィットします。

西馬込勤務なら、どこに住むのが現実的?

西馬込へ通う前提で住む場所を考えるなら、無理のない沿線選びが大切です。候補として考えやすいのは、次のエリアです。

西馬込

職場が西馬込なら、やはり駅周辺に住むメリットは大きめです。通勤時間をほとんど気にせず暮らせるため、始業が早い人や帰宅が遅くなりがちな人に向いています。街の静けさをそのまま享受できるのも魅力です。

馬込

隣駅の馬込は、通勤距離をほとんど増やさずに候補を広げやすいエリアです。西馬込と同じく住宅地として落ち着きがあり、物件条件を比較しやすいのが利点。駅ごとの空気感の違いを見ながら選びたい人に向いています。

中延

中延は、商店街の使いやすさが日常の満足度につながるエリアです。西馬込ほど静けさ一辺倒ではなく、買い物や生活利便をもう少し強めたい人に合います。通勤もしやすく、単身者にも二人暮らしにもバランスのいい選択肢です。

戸越

戸越は、戸越銀座に代表される商店街文化が色濃く、暮らしの楽しさを感じやすい街です。西馬込勤務でも無理のない範囲で、日常に少しにぎわいを取り入れたい人に向いています。休日の街歩きが好きな人なら、住んでからの満足度も高いはずです。

池上

池上は、落ち着きと生活利便のバランスがよく、住宅地としての完成度が高いエリアです。路線は異なりますが、西馬込へはバスや自転車も含めて現実的に考えやすく、沿線を固定しすぎず住環境で選びたい人に向いています。

久が原

久が原は、より穏やかな住宅地志向の人向けです。ファミリーで静かな環境を優先したい場合に候補へ入れやすい街といえます。通勤はワンアクション増えるものの、その分、住環境の落ち着きに重きを置けます。

こんな人に西馬込はおすすめ

西馬込は、次のような人に特に向いています。

  • 始発駅のメリットを毎日の通勤に活かしたい人
  • 駅前の華やかさより、住宅地の静けさを重視する人
  • 在宅勤務と出社を両立しやすい落ち着いた街を探している人
  • 子育てを見据えて、大きな繁華街から少し距離を置きたい人
  • 文化や土地の歴史に惹かれる人

一方で、駅前に商業施設が集まる便利さや、外食・カフェの選択肢の多さを最優先するなら、別の駅のほうが満足度は上がるかもしれません。

西馬込で部屋探しをするときのチェックポイント

西馬込で物件を見るなら、次の点は特に意識しておきたいところです。

  • 坂道のきつさ
    地図だけではわかりにくいため、駅から実際に歩いて確認したいポイントです。

  • スーパーへの行きやすさ
    駅前完結型ではないので、食品や日用品をどこで買うかを具体的にイメージしておくと安心です。

  • 夜道の雰囲気
    静かな住宅街だからこそ、帰宅時間帯の明るさや人通りは見ておきたいところです。

  • バス・自転車の使いやすさ
    徒歩だけで完結させるより、移動手段を少し広げたほうが暮らしやすさが上がるエリアです。

まとめ

西馬込駅は、都営浅草線の始発という確かな交通メリットと、静かな住宅街の暮らしやすさを両立できる駅です。駅前の派手さは控えめですが、そのぶん生活には落ち着きがあり、住み続けるほどに良さが見えてきます。

馬込文士村の背景、桜並木の風景、そして大田区らしい実直な生活感。西馬込の魅力は、ひと目でわかる華やかさではなく、日々の積み重ねのなかで実感できる心地よさにあります。通勤のしやすさだけでなく、家に帰ってからの時間まで大切にしたい人にとって、この駅は十分に有力な候補になるはずです。

「便利すぎなくていい。でも、通勤は妥協したくない」
そんな感覚に心当たりがあるなら、西馬込は一度じっくり歩いてみたい街です。

ブログ記事を全文で読む

同じ建物の他の部屋
5

募集終了の部屋

似た条件の物件

Hokinawaとは

Hokinawaは仲介手数料0円のオンライン不動産サービスです。管理会社から直接届く最新の空室情報をリアルタイムで確認し、気に入った物件はダイレクトに申し込み。押し売りや無断での電話・メールによる営業は一切行っておりません。

仲介手数料 0円

通常1ヶ月分が不要

来店不要

オンライン完結

ダイレクト申し込み

気に入ったらそのまま手続き

エリア情報

西馬込駅は都営浅草線の南端に位置し、大田区の落ち着いた住宅地に開かれた駅です。周辺は低層の一戸建てや昔ながらの商店街が混在し、定食屋や銭湯、小さな公園が点在する下町の風情が残っています。都心方面への通勤路としての役割を担い、バス路線などと連絡して日常の生活動線を支える街です。