ルリオン両国
502
最終募集時の賃料
9.5万円
築17年
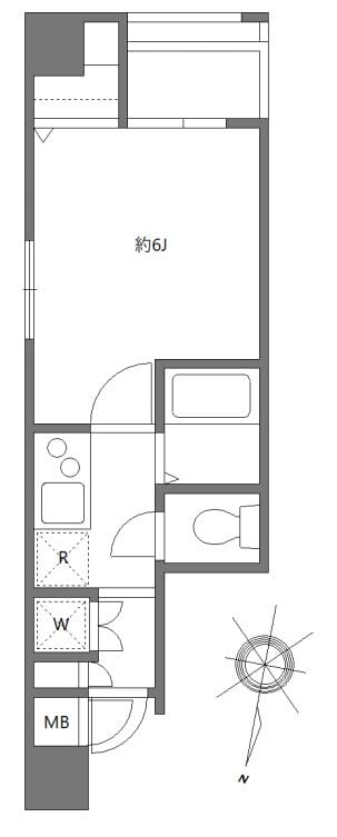
1K
20.4m²
東京都墨田区石原1丁目29-13
最終更新日: 2026年2月22日
交通アクセス
両国
6分
両国
12分
設備・特徴
2階以上
ペット相談可
オートロック
エアコン
バス・トイレ別
室内洗濯機置き場
管理会社
株式会社S-FITパートナーズ
Hokinawaとは
Hokinawaは仲介手数料0円のオンライン不動産サービスです。管理会社から直接届く最新の空室情報をリアルタイムで確認し、気に入った物件はダイレクトに申し込み。押し売りや無断での電話・メールによる営業は一切行っておりません。
仲介手数料 0円
通常1ヶ月分が不要
来店不要
オンライン完結
ダイレクト申し込み
気に入ったらそのまま手続き
エリア情報
両国駅(JR総武線・都営大江戸線)は墨田区の中心に位置し、国技館や江戸東京博物館の最寄りとして知られる交通の結節点です。周辺は相撲部屋やちゃんこ鍋の店が軒を連ね、巡業や本場所の日には相撲ファンでにぎわう一方、古い商店や下町風情の残る通りが混在します。隅田川沿いの景観や博物館めぐりを楽しみつつ、東京の伝統文化に触れるエリアです。








