ホーム

/

エリア検索

/

港区

/

ルーブル芝公園

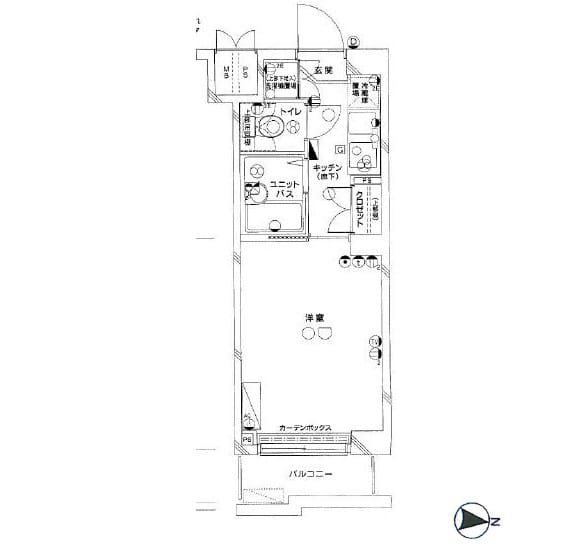
ルーブル芝公園

801

最終募集時の賃料

11.9万円

築25年
1K
19.3m²

東京都港区芝公園2丁目9-7

都営三田線の路線アイコン芝公園3

最終更新日: 2026年1月10日

交通アクセス

都営三田線の路線アイコン

芝公園

3

都営浅草線の路線アイコン

大門

5

都営大江戸線の路線アイコン

大門

5

設備・特徴

2階以上
オートロック
エアコン
バス・トイレ別
室内洗濯機置き場

管理会社

株式会社フュディアルコミュニティ

同じ建物の他の部屋
1

募集終了の部屋

似た条件の物件

Hokinawaとは

Hokinawaは仲介手数料0円のオンライン不動産サービスです。管理会社から直接届く最新の空室情報をリアルタイムで確認し、気に入った物件はダイレクトに申し込み。押し売りや無断での電話・メールによる営業は一切行っておりません。

仲介手数料 0円

通常1ヶ月分が不要

来店不要

オンライン完結

ダイレクト申し込み

気に入ったらそのまま手続き

エリア情報

都営三田線・芝公園駅(港区)は、芝公園沿いに立地し、東京タワーや増上寺への入口的な役割を果たす駅です。周辺は公園の緑と寺社の佇まいが残る一方で、昔ながらの飲食店や小規模なオフィスが混在する、観光と日常が入り交じる街並みが特徴です。狭い裏通りに点在する喫茶店や居酒屋が地元の顔となっており、散歩や用事のついでに寄りやすい雰囲気です