リオグランデ綾瀬 3.4F
34.5万円/なし/10,000円
最終募集時の賃料
34.5万円
築29年
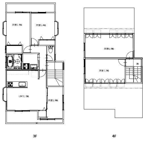
4LDK
95.6m²
東京都足立区綾瀬5丁目15-9
最終更新日: 2026年1月9日
交通アクセス
綾瀬
10分
設備・特徴
2階以上
エアコン
バス・トイレ別
室内洗濯機置き場
独立洗面台
浴室乾燥機
防犯カメラ
2人入居可
管理会社
株式会社リオ・トラスト
Hokinawaとは
Hokinawaは仲介手数料0円のオンライン不動産サービスです。管理会社から直接届く最新の空室情報をリアルタイムで確認し、気に入った物件はダイレクトに申し込み。押し売りや無断での電話・メールによる営業は一切行っておりません。
仲介手数料 0円
通常1ヶ月分が不要
来店不要
オンライン完結
ダイレクト申し込み
気に入ったらそのまま手続き
エリア情報
綾瀬駅は東京北東部、足立区と葛飾区の境界付近に位置し、東京メトロ千代田線とJR常磐線(常磐緩行線)が交差する交通の結節点です。下町風情の残る商店街や個人経営の飲食店、小さな工場や住宅が混在し、日常の買い物や外食に事欠かない街並みが広がっています。千代田線で都心へ直結し、常磐線で北東方面へ出やすいことから通勤・通学の乗換地点にもなっており、銭湯や昔ながらの店が点在する生活感の強いエリアです。






