リヴシティ両国五番館
502
12.4万円
仲介手数料0円
築2年
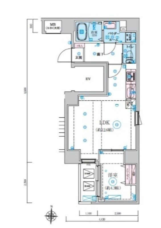
1K
28.5m²
東京都墨田区両国4丁目7-2
掲載開始日: 2026年2月25日
(1ヶ月前)
月額費用
家賃 | 12.4万円 |
管理費・共益費 | 1万円 |
月額合計 | 13.4万円 |
|---|
初期費用
仲介手数料 | 0円 |
敷金 | 0円 |
礼金 | 13.4万円 |
保証料 | 6.7万円 |
合計金額(概算) | 20.1万円 |
|---|
通常、鍵交換・クリーニング・火災保険・安心サポートなどの追加費用が別途発生します。詳細はお問い合わせください。
入居情報
入居開始予定日
2026年2月25日以降
掲載開始日
2026年2月25日
(1ヶ月前)
交通アクセス
両国
6分
森下
7分
森下
8分
設備・特徴
2階以上
ペット相談可
オートロック
エアコン
バス・トイレ別
室内洗濯機置き場
独立洗面台
2人入居可
管理会社
株式会社リアルワン
似た条件の物件
Hokinawaとは
Hokinawaは仲介手数料0円のオンライン不動産サービスです。管理会社から直接届く最新の空室情報をリアルタイムで確認し、気に入った物件はダイレクトに申し込み。押し売りや無断での電話・メールによる営業は一切行っておりません。
仲介手数料 0円
通常1ヶ月分が不要
来店不要
オンライン完結
ダイレクト申し込み
気に入ったらそのまま手続き
エリア情報
両国駅(JR総武線・都営大江戸線)は墨田区の中心に位置し、国技館や江戸東京博物館の最寄りとして知られる交通の結節点です。周辺は相撲部屋やちゃんこ鍋の店が軒を連ね、巡業や本場所の日には相撲ファンでにぎわう一方、古い商店や下町風情の残る通りが混在します。隅田川沿いの景観や博物館めぐりを楽しみつつ、東京の伝統文化に触れるエリアです。


