レオパレスウィング
107
最終募集時の賃料
7.1万円
築20年
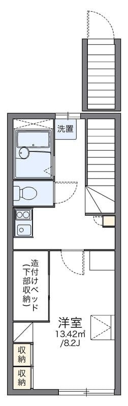
1K
23.7m²
東京都調布市飛田給3丁目
最終更新日: 2026年1月10日
交通アクセス
飛田給
11分
設備・特徴
エアコン
バス・トイレ別
室内洗濯機置き場
管理会社
株式会社レオパレス21 レオパレスセンター新宿第6
Hokinawaとは
Hokinawaは仲介手数料0円のオンライン不動産サービスです。管理会社から直接届く最新の空室情報をリアルタイムで確認し、気に入った物件はダイレクトに申し込み。押し売りや無断での電話・メールによる営業は一切行っておりません。
仲介手数料 0円
通常1ヶ月分が不要
来店不要
オンライン完結
ダイレクト申し込み
気に入ったらそのまま手続き
エリア情報
飛田給駅は京王線の調布市側にあり、味の素スタジアムへのアクセス駅として知られているため、平日は住宅街の生活駅、イベント時は観客で一時的に賑わう。周辺は昭和期からの住宅地と個人商店が混在し、昔ながらの飲食店や商店街の風情と公園や学校のある落ち着いた町並みが広がる。京王線を使った都心方面への通勤・通学の導線であり、試合や催し物が街の表情を色づけるエリアだ。








