RELUXIA東向島Ⅱ
203
最終募集時の賃料
14.8万円
築2年
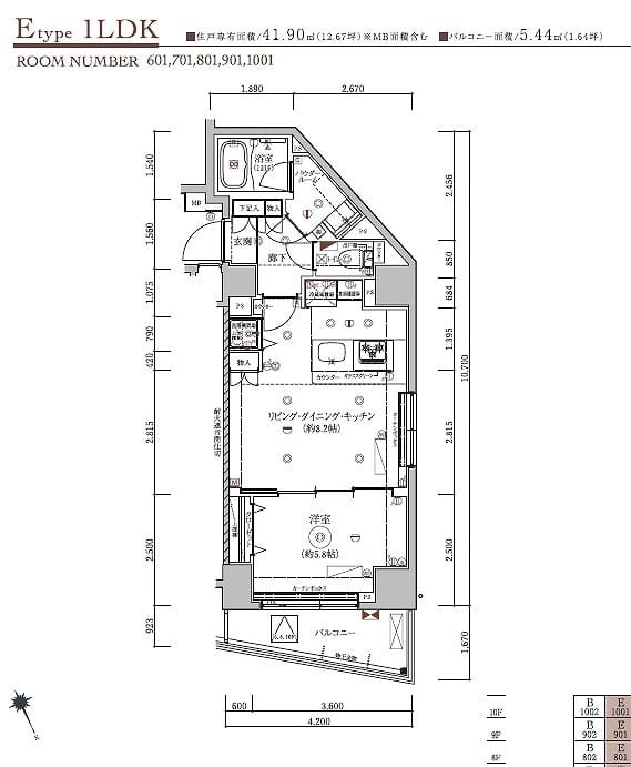
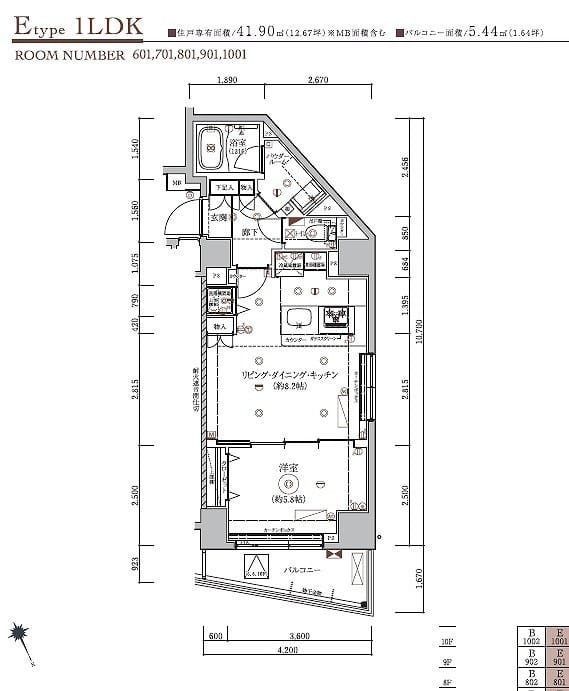
1DK
41.6m²
東京都墨田区東向島6丁目56-11
最終更新日: 2026年2月25日
交通アクセス
東向島
7分
八広
7分
設備・特徴
2階以上
管理会社
株式会社フュディアルコミュニティ
似た条件の物件
Hokinawaとは
Hokinawaは仲介手数料0円のオンライン不動産サービスです。管理会社から直接届く最新の空室情報をリアルタイムで確認し、気に入った物件はダイレクトに申し込み。押し売りや無断での電話・メールによる営業は一切行っておりません。
仲介手数料 0円
通常1ヶ月分が不要
来店不要
オンライン完結
ダイレクト申し込み
気に入ったらそのまま手続き
エリア情報
東武伊勢崎線の東向島駅は墨田区向島の下町エリアに位置し、駅前には商店街や昔ながらの住宅が続きます。隅田川沿いや古い寺社、向島百花園など緑や歴史を感じられるスポットが近く、散歩や地域の暮らしの風景が色濃く残っています。地元向けの飲食店や和菓子店、小さな商店が集まる、日常の足として使われるローカルな駅です。

