RELUXIA CITY 北新宿
102
最終募集時の賃料
11.6万円
築2年
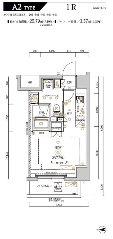
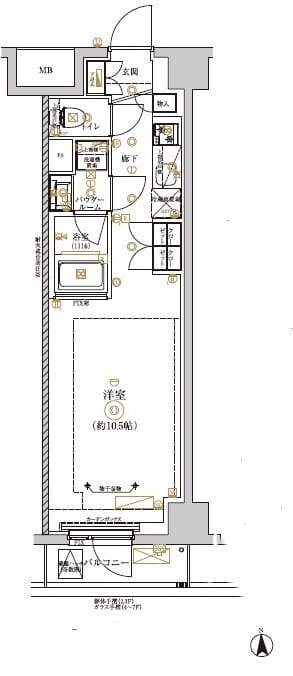
1R
25.8m²
東京都新宿区北新宿3丁目40-1
最終更新日: 2026年1月15日
交通アクセス
東中野
6分
東中野
10分
設備・特徴
表示できる設備情報がありません。
管理会社
株式会社フュディアルコミュニティ
Hokinawaとは
Hokinawaは仲介手数料0円のオンライン不動産サービスです。管理会社から直接届く最新の空室情報をリアルタイムで確認し、気に入った物件はダイレクトに申し込み。押し売りや無断での電話・メールによる営業は一切行っておりません。
仲介手数料 0円
通常1ヶ月分が不要
来店不要
オンライン完結
ダイレクト申し込み
気に入ったらそのまま手続き
エリア情報
東中野駅はJR中央・総武線と都営大江戸線が交差し、新宿区と中野区の境界に近い交通結節点です。周辺は住宅と個人商店、昔からの飲食店が入り混じる生活色の濃い街並みで、路地裏に小さな居酒屋や定食屋が点在しています。都心方面への通勤・通学での利用が多い一方で、落ち着いた街の風情や地域密着の店が残るのが特色です。












