レジディア大森東
0202
11.3万円
仲介手数料0円
築19年
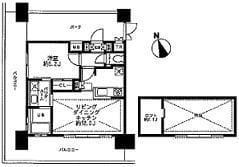
1R
20.3m²
東京都大田区大森東1丁目7-27
掲載開始日: 2026年3月9日
(1ヶ月前)
申請・内見予約・メッセージにはログインが必要です。最短1分で完了。
月額費用
家賃 | 11.3万円 |
管理費・共益費 | 1.5万円 |
月額合計 | 12.8万円 |
|---|
初期費用
仲介手数料 | 0円 |
敷金 | 0円 |
礼金 | 0円 |
保証料 | 6.4万円 |
合計金額(概算) | 6.4万円 |
|---|
通常、鍵交換・クリーニング・火災保険・安心サポートなどの追加費用が別途発生します。詳細はお問い合わせください。
入居情報
入居開始予定日
2026年5月1日以降
掲載開始日
2026年3月9日
(1ヶ月前)
交通アクセス
平和島
3分
大森町
12分
大森
23分
設備・特徴
2階以上
オートロック
エアコン
バス・トイレ別
室内洗濯機置き場
浴室乾燥機
モニター付きインターホン
防犯カメラ
管理会社
伊藤忠アーバンコミュニティ株式会社
似た条件の物件
Hokinawaとは
Hokinawaは仲介手数料0円のオンライン不動産サービスです。管理会社から直接届く最新の空室情報をリアルタイムで確認し、気に入った物件はダイレクトに申し込み。押し売りや無断での電話・メールによる営業は一切行っておりません。
仲介手数料 0円
通常1ヶ月分が不要
来店不要
オンライン完結
ダイレクト申し込み
気に入ったらそのまま手続き
エリア情報
平和島駅は京急本線の大田区側に位置し、東京湾沿いの工業地帯とレジャー施設が隣り合うエリアの玄関口です。ボートレース場や温浴施設が周辺に集まり、幹線沿いには倉庫や物流拠点、簡易宿泊やドライブ客向けの商業が混在する実用的な街並みが広がります。都心や横浜方面への移動に使われる一方、買い物や短期滞在、海辺の散策の拠点としても利用されています。











