レガリス馬込パークサイド
309
最終募集時の賃料
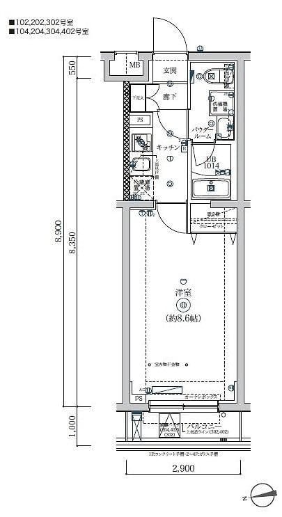
9.4万円
築6年
1K
25.6m²
西向き
東京都大田区中馬込1丁目19-8
最終更新日: 2026年4月15日
交通アクセス
馬込
8分
設備・特徴
2階以上
ペット相談可
オートロック
エアコン
バス・トイレ別
室内洗濯機置き場
独立洗面台
浴室乾燥機
防犯カメラ
管理会社
株式会社イディアライズコーポレーション 本店
Hokinawaとは
Hokinawaは仲介手数料0円のオンライン不動産サービスです。管理会社から直接届く最新の空室情報をリアルタイムで確認し、気に入った物件はダイレクトに申し込み。押し売りや無断での電話・メールによる営業は一切行っておりません。
仲介手数料 0円
通常1ヶ月分が不要
来店不要
オンライン完結
ダイレクト申し込み
気に入ったらそのまま手続き
エリア情報
馬込駅(都営浅草線)は大田区側にある生活拠点で、品川区との境界に近い住宅街の駅です。周辺は低層住宅や昔ながらの商店街、寺社が点在する下町的な風情が色濃く残り、日々の買い物や散策に便利な店が並びます。都心方面への乗り換えルートとしての役割を持ちながら、落ち着いた街並みと地域密着の雰囲気が特徴です。








