ラクラス蒲田Ⅱ
0402
12.6万円
仲介手数料0円
築6年
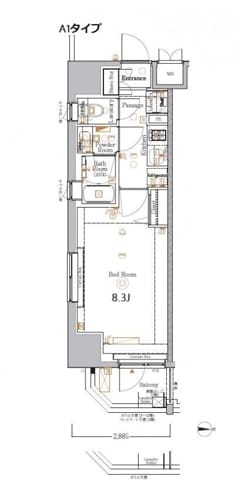
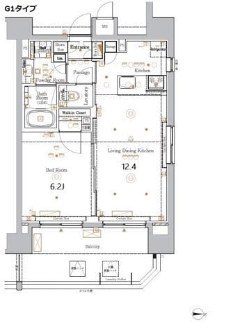
1K
25.1m²
東向き
東京都大田区西蒲田8丁目24-7
掲載開始日: 2026年3月9日
(1ヶ月前)
月額費用
家賃 | 12.6万円 |
管理費・共益費 | 1万円 |
月額合計 | 13.6万円 |
|---|
初期費用
仲介手数料 | 0円 |
敷金 | 13.6万円 |
礼金 | 13.6万円 |
保証料 | 6.8万円 |
合計金額(概算) | 34万円 |
|---|
通常、鍵交換・クリーニング・火災保険・安心サポートなどの追加費用が別途発生します。詳細はお問い合わせください。
入居情報
入居開始予定日
2026年4月21日以降
掲載開始日
2026年3月9日
(1ヶ月前)
交通アクセス
蒲田
3分
蒲田
3分
蒲田
3分
設備・特徴
2階以上
ペット相談可
オートロック
エアコン
バス・トイレ別
室内洗濯機置き場
独立洗面台
浴室乾燥機
モニター付きインターホン
防犯カメラ
管理会社
伊藤忠アーバンコミュニティ株式会社
似た条件の物件
Hokinawaとは
Hokinawaは仲介手数料0円のオンライン不動産サービスです。管理会社から直接届く最新の空室情報をリアルタイムで確認し、気に入った物件はダイレクトに申し込み。押し売りや無断での電話・メールによる営業は一切行っておりません。
仲介手数料 0円
通常1ヶ月分が不要
来店不要
オンライン完結
ダイレクト申し込み
気に入ったらそのまま手続き
エリア情報
蒲田駅はJR京浜東北線と東急多摩川線・池上線が交差する大田区の交通結節点で、区内の南北や都心方面への乗り換えに使われることが多い。駅周辺は昭和の香りを残す商店街やガード下の飲食店が密集し、とんかつ店や居酒屋が地元に根付いた賑わいを作っている。駅前の駅ビルや路地の小さな専門店が入り混じり、住宅地や小規模な工場地帯とも接する雑多で生活感のある街並みが特徴だ。







