RAFFINE TERRACE
0602
最終募集時の賃料
9.2万円
築11年
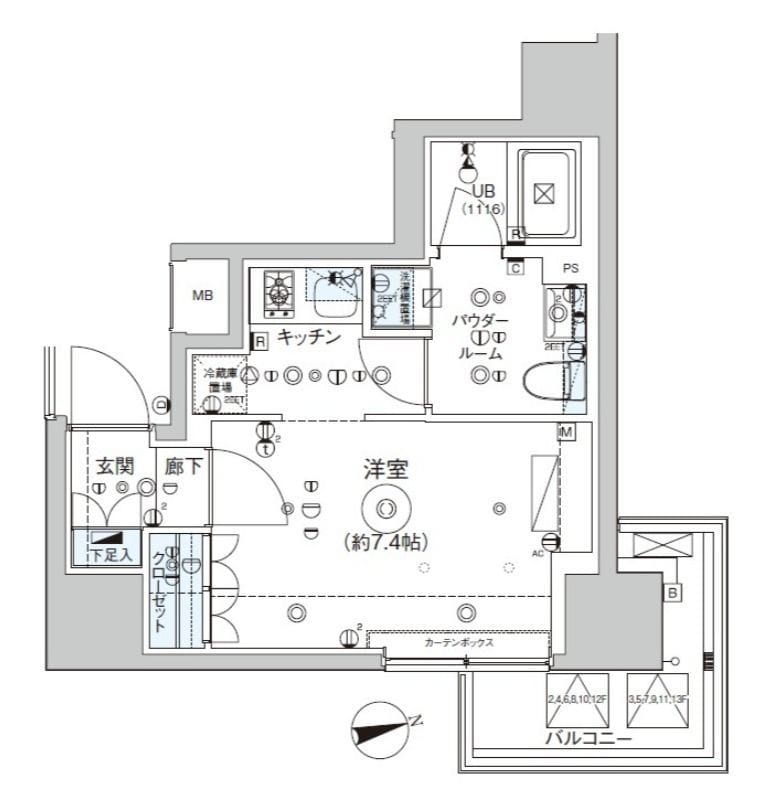
1K
25.5m²
南西向き
東京都台東区浅草3丁目3-1
最終更新日: 2026年4月4日
交通アクセス
浅草
7分
設備・特徴
2階以上
オートロック
エアコン
バス・トイレ別
モニター付きインターホン
管理会社
東急住宅リース株式会社 本店
Hokinawaとは
Hokinawaは仲介手数料0円のオンライン不動産サービスです。管理会社から直接届く最新の空室情報をリアルタイムで確認し、気に入った物件はダイレクトに申し込み。押し売りや無断での電話・メールによる営業は一切行っておりません。
仲介手数料 0円
通常1ヶ月分が不要
来店不要
オンライン完結
ダイレクト申し込み
気に入ったらそのまま手続き






