プロスペクト初台
0207
最終募集時の賃料
15万円
築20年
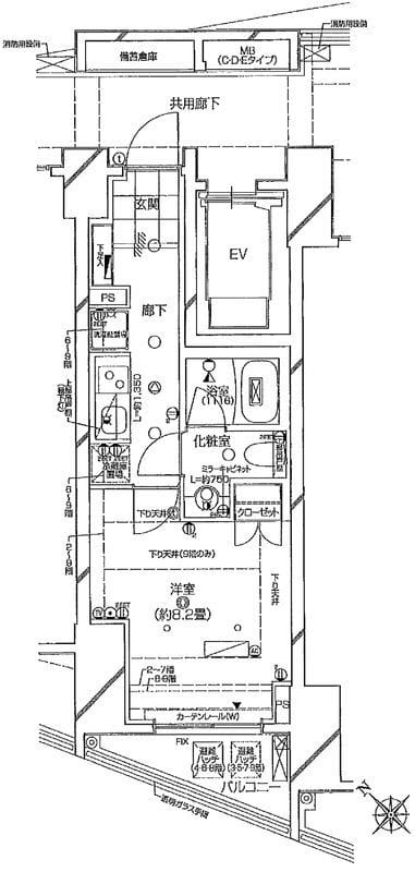
1R
33.9m²
入力なし
東京都渋谷区本町1丁目5-17
最終更新日: 2026年4月15日
交通アクセス
初台
3分
設備・特徴
2階以上
ペット相談可
オートロック
エアコン
室内洗濯機置き場
独立洗面台
浴室乾燥機
モニター付きインターホン
管理会社
株式会社長谷工ライブネット東京事務所
Hokinawaとは
Hokinawaは仲介手数料0円のオンライン不動産サービスです。管理会社から直接届く最新の空室情報をリアルタイムで確認し、気に入った物件はダイレクトに申し込み。押し売りや無断での電話・メールによる営業は一切行っておりません。
仲介手数料 0円
通常1ヶ月分が不要
来店不要
オンライン完結
ダイレクト申し込み
気に入ったらそのまま手続き
エリア情報
初台駅は京王新線の駅で、渋谷区と新宿区の境に位置し、東京オペラシティや新国立劇場といった文化施設の最寄りとして知られる。駅前はオフィスやコンサートホールが目立つ一方で、通りを入ると落ち着いた住宅街と昔ながらの飲食店や小さな商店が混在している。新宿の西側へのアクセス口として通勤や観劇の利用が多く、夜は小さな居酒屋やバーが賑わう街並みが残る。







