プレステージ高野台
405
7万円
仲介手数料0円
築19年
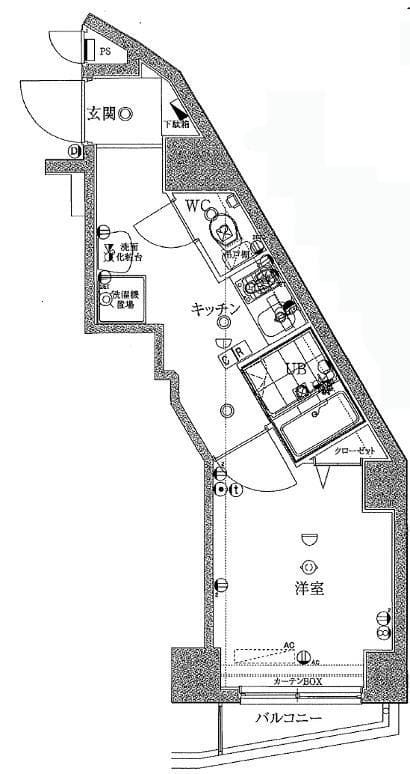
1K
20.2m²
東京都練馬区富士見台3丁目20-7
掲載開始日: 2025年12月28日
(3ヶ月前)
月額費用
家賃 | 7万円 |
管理費・共益費 | 0.7万円 |
月額合計 | 7.7万円 |
|---|
初期費用
仲介手数料 | 0円 |
敷金 | 7.7万円 |
礼金 | 11.6万円 |
保証料 | 3.85万円 |
合計金額(概算) | 23.1万円 |
|---|
通常、鍵交換・クリーニング・火災保険・安心サポートなどの追加費用が別途発生します。詳細はお問い合わせください。
入居情報
入居開始予定日
要確認
掲載開始日
2025年12月28日
(3ヶ月前)
交通アクセス
練馬高野台
8分
富士見台
14分
設備・特徴
2階以上
ペット相談可
オートロック
エアコン
バス・トイレ別
室内洗濯機置き場
独立洗面台
管理会社
株式会社COLORS
似た条件の物件
Hokinawaとは
Hokinawaは仲介手数料0円のオンライン不動産サービスです。管理会社から直接届く最新の空室情報をリアルタイムで確認し、気に入った物件はダイレクトに申し込み。押し売りや無断での電話・メールによる営業は一切行っておりません。
仲介手数料 0円
通常1ヶ月分が不要
来店不要
オンライン完結
ダイレクト申し込み
気に入ったらそのまま手続き
エリア情報
西武池袋線の練馬高野台駅は、練馬区の落ち着いた住宅街にある地域密着の通勤・生活拠点です。駅前から続く商店街には昔ながらの惣菜屋やパン屋、喫茶店が並び、日常の買い物や散歩で立ち寄りたくなる素朴なにぎわいがあります。低層住宅や小さな公園が点在する穏やかな街並みが特徴で、都心方面へのアクセスを支える一方で暮らしの風景が色濃く残っています。
