プレール・ドゥーク東京EASTⅤ
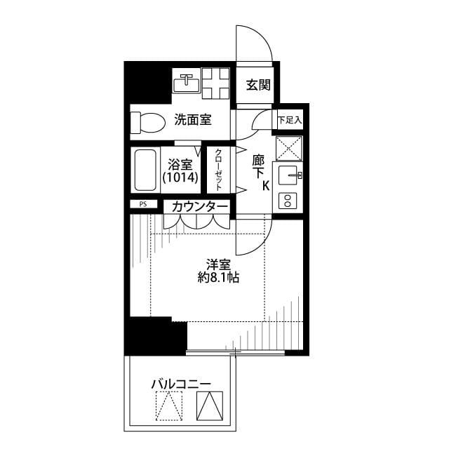
804
9万円
仲介手数料0円
築16年
1K
25.7m²
北東向き
東京都台東区三ノ輪1丁目1-11
掲載開始日: 2026年4月8日
(1週間前)
月額費用
家賃 | 9万円 |
管理費・共益費 | 0.8万円 |
月額合計 | 9.8万円 |
|---|
初期費用
仲介手数料 | 0円 |
敷金 | 0円 |
礼金 | 9万円 |
保証料 | 4.9万円 |
合計金額(概算) | 13.9万円 |
|---|
通常、鍵交換・クリーニング・火災保険・安心サポートなどの追加費用が別途発生します。詳細はお問い合わせください。
入居情報
入居開始予定日
2026年6月5日以降
掲載開始日
2026年4月8日
(1週間前)
交通アクセス
三ノ輪
5分
三ノ輪橋
8分
南千住
11分
設備・特徴
2階以上
ペット相談可
オートロック
エアコン
バス・トイレ別
室内洗濯機置き場
独立洗面台
浴室乾燥機
モニター付きインターホン
防犯カメラ
管理会社
株式会社木下の賃貸 東京営業所
似た条件の物件
Hokinawaとは
Hokinawaは仲介手数料0円のオンライン不動産サービスです。管理会社から直接届く最新の空室情報をリアルタイムで確認し、気に入った物件はダイレクトに申し込み。押し売りや無断での電話・メールによる営業は一切行っておりません。
仲介手数料 0円
通常1ヶ月分が不要
来店不要
オンライン完結
ダイレクト申し込み
気に入ったらそのまま手続き
エリア情報
東京メトロ日比谷線の三ノ輪駅は、荒川区と台東区の境界近くに位置する下町の玄関口です。駅周辺は昔ながらの商店や定食屋が並ぶ商店街と生活感のある住宅地が混在しており、都電荒川線の三ノ輪橋停留場が近接して路面電車で浅草方面などへつながります。昭和の雰囲気を残す店構えや地元の食文化が色濃く、観光客にも生活者にも身近なエリアです。




