ホーム

/

エリア検索

/

港区

/

プレール・ドゥーク高輪

プレール・ドゥーク高輪

202

最終募集時の賃料

9.6万円

築20年
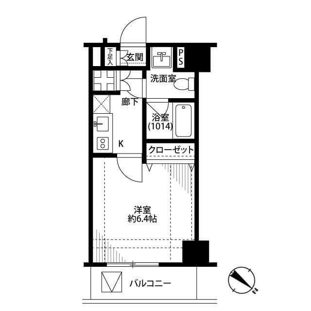
1K
22.2m²

東京都港区高輪1丁目23-1

東京メトロ南北線の路線アイコン白金高輪4

最終更新日: 2026年1月18日

交通アクセス

東京メトロ南北線の路線アイコン

白金高輪

4

東京メトロ南北線の路線アイコン

白金台

8

都営三田線の路線アイコン

白金高輪

8

1

設備・特徴

2階以上
オートロック
エアコン
バス・トイレ別
室内洗濯機置き場
独立洗面台

管理会社

i Life 株式会社

同じ建物の他の部屋
2

募集終了の部屋

似た条件の物件

Hokinawaとは

Hokinawaは仲介手数料0円のオンライン不動産サービスです。管理会社から直接届く最新の空室情報をリアルタイムで確認し、気に入った物件はダイレクトに申し込み。押し売りや無断での電話・メールによる営業は一切行っておりません。

仲介手数料 0円

通常1ヶ月分が不要

来店不要

オンライン完結

ダイレクト申し込み

気に入ったらそのまま手続き

エリア情報

白金高輪駅は東京メトロ南北線と都営三田線が乗り入れる港区の駅で、白金と高輪の境界に位置し周辺住宅地の生活動線を支える交通拠点です。落ち着いた街並みにこだわりのカフェや小さなセレクトショップ、飲食店が点在し、いわゆる「プラチナ通り」周辺の洗練された商業感が漂います。公園や寺社、近隣の美術館や緑地へのアクセス口として使われ、都心各所への移動にも適した場所です。