プレール・ドゥーク東京EAST Ⅳ RiverSide
1203
最終募集時の賃料
14.3万円
築17年
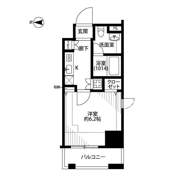
1LDK
45.2m²
東京都荒川区南千住7丁目22-5
最終更新日: 2026年2月21日
交通アクセス
南千住
10分
設備・特徴
2階以上
オートロック
エアコン
バス・トイレ別
室内洗濯機置き場
独立洗面台
浴室乾燥機
モニター付きインターホン
防犯カメラ
2人入居可
管理会社
株式会社木下の賃貸 東京営業所
似た条件の物件
Hokinawaとは
Hokinawaは仲介手数料0円のオンライン不動産サービスです。管理会社から直接届く最新の空室情報をリアルタイムで確認し、気に入った物件はダイレクトに申し込み。押し売りや無断での電話・メールによる営業は一切行っておりません。
仲介手数料 0円
通常1ヶ月分が不要
来店不要
オンライン完結
ダイレクト申し込み
気に入ったらそのまま手続き
エリア情報
南千住はJR常磐線、東京メトロ日比谷線、つくばエクスプレスが交差する、荒川区と台東区の境に位置する駅です。昔ながらの商店街や町工場が混在し、下町らしい飲食店や銭湯、隅田川沿いのリバーサイド公園が日常風景を形づくっています。上野・都心方面と郊外を結ぶ乗換拠点として機能し、通勤・通学の流れと地域の暮らしが素朴に共存するエリアです。
