ピアース初台センティア
203
11.7万円
仲介手数料0円
築9年
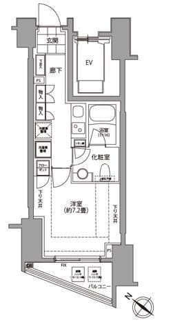
1R
28.8m²
南西向き
東京都渋谷区本町1丁目12-4
掲載開始日: 2026年4月4日
(1週間前)
月額費用
家賃 | 11.7万円 |
管理費・共益費 | 1.1万円 |
月額合計 | 12.8万円 |
|---|
初期費用
仲介手数料 | 0円 |
敷金 | 12.8万円 |
礼金 | 12.8万円 |
保証料 | 6.4万円 |
合計金額(概算) | 32万円 |
|---|
通常、鍵交換・クリーニング・火災保険・安心サポートなどの追加費用が別途発生します。詳細はお問い合わせください。
入居情報
入居開始予定日
2026年5月21日以降
掲載開始日
2026年4月4日
(1週間前)
交通アクセス
初台
5分
設備・特徴
2階以上
エアコン
バス・トイレ別
室内洗濯機置き場
独立洗面台
浴室乾燥機
2人入居可
管理会社
株式会社モリモトクオリティ
Hokinawaとは
Hokinawaは仲介手数料0円のオンライン不動産サービスです。管理会社から直接届く最新の空室情報をリアルタイムで確認し、気に入った物件はダイレクトに申し込み。押し売りや無断での電話・メールによる営業は一切行っておりません。
仲介手数料 0円
通常1ヶ月分が不要
来店不要
オンライン完結
ダイレクト申し込み
気に入ったらそのまま手続き






