ピアース柿の木坂
604
15.5万円
仲介手数料0円
新築
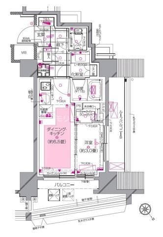
1DK
25.6m²
北東向き
東京都目黒区柿の木坂3丁目3-6
掲載開始日: 2026年4月6日
(1週間前)
申請・内見予約・メッセージにはログインが必要です。最短1分で完了。
月額費用
家賃 | 15.5万円 |
管理費・共益費 | 1.5万円 |
月額合計 | 17万円 |
|---|
初期費用
仲介手数料 | 0円 |
敷金 | 17万円 |
礼金 | 17万円 |
保証料 | 8.5万円 |
合計金額(概算) | 42.5万円 |
|---|
通常、鍵交換・クリーニング・火災保険・安心サポートなどの追加費用が別途発生します。詳細はお問い合わせください。
入居情報
入居開始予定日
即入居可
掲載開始日
2026年4月6日
(1週間前)
交通アクセス
学芸大学
12分
設備・特徴
2階以上
オートロック
エアコン
バス・トイレ別
室内洗濯機置き場
浴室乾燥機
モニター付きインターホン
防犯カメラ
床暖房
管理会社
株式会社モリモトクオリティ
Hokinawaとは
Hokinawaは仲介手数料0円のオンライン不動産サービスです。管理会社から直接届く最新の空室情報をリアルタイムで確認し、気に入った物件はダイレクトに申し込み。押し売りや無断での電話・メールによる営業は一切行っておりません。
仲介手数料 0円
通常1ヶ月分が不要
来店不要
オンライン完結
ダイレクト申し込み
気に入ったらそのまま手続き






