パレステージ江北Ⅰ
403
最終募集時の賃料
15.3万円
築9年
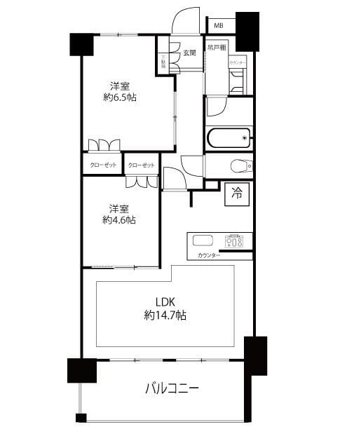
2LDK
48.5m²
東京都足立区江北4丁目11-6
最終更新日: 2026年2月19日
交通アクセス
江北
8分
設備・特徴
2階以上
ペット相談可
オートロック
エアコン
バス・トイレ別
室内洗濯機置き場
浴室乾燥機
モニター付きインターホン
防犯カメラ
床暖房
管理会社
S.ステップ 株式会社
Hokinawaとは
Hokinawaは仲介手数料0円のオンライン不動産サービスです。管理会社から直接届く最新の空室情報をリアルタイムで確認し、気に入った物件はダイレクトに申し込み。押し売りや無断での電話・メールによる営業は一切行っておりません。
仲介手数料 0円
通常1ヶ月分が不要
来店不要
オンライン完結
ダイレクト申し込み
気に入ったらそのまま手続き
エリア情報
江北駅は日暮里・舎人ライナーの足立区江北エリアにある駅で、低層の住宅地と昔ながらの商店街が続く生活拠点です。日暮里方面や都心方面への通勤・通学の動線になっており、周辺には個人経営の飲食店や定食屋、庶民的な商店が残っています。近くの公園や緑地での散歩や地域行事のにぎわいが見られ、下町の気取らない日常感が街の特徴です。





