パークキューブ浅草田原町
901
22.5万円
仲介手数料0円
築20年
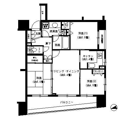
1SLDK
50m²
東向き
東京都台東区寿3丁目19-7
掲載開始日: 2026年3月11日
(1ヶ月前)
月額費用
家賃 | 22.5万円 |
管理費・共益費 | 1万円 |
月額合計 | 23.5万円 |
|---|
初期費用
仲介手数料 | 0円 |
敷金 | 23.5万円 |
礼金 | 23.5万円 |
保証料 | 11.8万円 |
合計金額(概算) | 58.8万円 |
|---|
通常、鍵交換・クリーニング・火災保険・安心サポートなどの追加費用が別途発生します。詳細はお問い合わせください。
入居情報
入居開始予定日
2026年5月11日以降
掲載開始日
2026年3月11日
(1ヶ月前)
交通アクセス
田原町
3分
浅草
7分
蔵前
8分
設備・特徴
2階以上
ペット相談可
オートロック
エアコン
バス・トイレ別
室内洗濯機置き場
浴室乾燥機
管理会社
三井不動産レジデンシャルリース株式会社 受本二部
似た条件の物件
Hokinawaとは
Hokinawaは仲介手数料0円のオンライン不動産サービスです。管理会社から直接届く最新の空室情報をリアルタイムで確認し、気に入った物件はダイレクトに申し込み。押し売りや無断での電話・メールによる営業は一切行っておりません。
仲介手数料 0円
通常1ヶ月分が不要
来店不要
オンライン完結
ダイレクト申し込み
気に入ったらそのまま手続き
エリア情報
東京メトロ銀座線の田原町駅は台東区の浅草寄りに位置し、浅草寺方面やかっぱ橋道具街へのアクセス口として知られる。周辺は長年続く厨房用品店や老舗飲食店、下町の商店が混在する生活色の濃い街並みが広がる。観光地の賑わいと日常の商いが同居する、昔ながらの東京らしい風情が感じられるエリアだ。





