パークビューステージ東陽町
304
25.9万円
仲介手数料0円
築24年
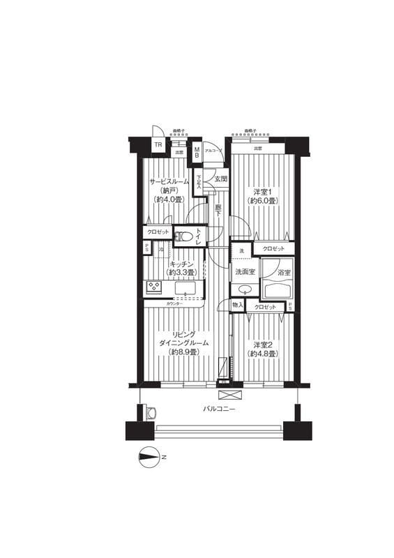
4LDK
80.1m²
南向き
東京都江東区南砂1丁目1-2
掲載開始日: 2026年3月31日
(2週間前)
月額費用
家賃 | 25.9万円 |
管理費・共益費 | 1.15万円 |
月額合計 | 27万円 |
|---|
初期費用
仲介手数料 | 0円 |
敷金 | 27万円 |
礼金 | 54万円 |
保証料 | 13.5万円 |
合計金額(概算) | 94.5万円 |
|---|
通常、鍵交換・クリーニング・火災保険・安心サポートなどの追加費用が別途発生します。詳細はお問い合わせください。
入居情報
入居開始予定日
要確認
掲載開始日
2026年3月31日
(2週間前)
交通アクセス
東陽町
12分
設備・特徴
2階以上
オートロック
エアコン
バス・トイレ別
室内洗濯機置き場
独立洗面台
浴室乾燥機
モニター付きインターホン
防犯カメラ
管理会社
株式会社 エル・イー・オー
Hokinawaとは
Hokinawaは仲介手数料0円のオンライン不動産サービスです。管理会社から直接届く最新の空室情報をリアルタイムで確認し、気に入った物件はダイレクトに申し込み。押し売りや無断での電話・メールによる営業は一切行っておりません。
仲介手数料 0円
通常1ヶ月分が不要
来店不要
オンライン完結
ダイレクト申し込み
気に入ったらそのまま手続き
エリア情報
東陽町駅は東京メトロ東西線の江東区エリアにある駅で、都心と臨海部をつなぐ通勤路線の中継点になっています。駅周辺は幹線道路沿いの住宅地と物流施設が混在する街並みで、昔ながらの商店や定食屋、チェーン店が並ぶ日常使いの商業ゾーンが目立ちます。バス路線や住宅街への導線が整っており、暮らしの拠点としての色合いが強い地域です。












