パークアベニュー
103
16.5万円
仲介手数料0円
築38年
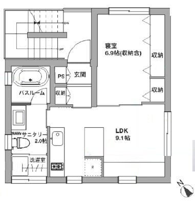
1DK
32.6m²
入力なし
東京都品川区荏原5丁目5-17
掲載開始日: 2026年3月14日
(1ヶ月前)
申請・内見予約・メッセージにはログインが必要です。最短1分で完了。
月額費用
家賃 | 16.5万円 |
月額合計 | 16.5万円 |
|---|
初期費用
仲介手数料 | 0円 |
敷金 | 0円 |
礼金 | 8.25万円 |
保証料 | 8.25万円 |
合計金額(概算) | 16.5万円 |
|---|
通常、鍵交換・クリーニング・火災保険・安心サポートなどの追加費用が別途発生します。詳細はお問い合わせください。
入居情報
入居開始予定日
即入居可
掲載開始日
2026年3月14日
(1ヶ月前)
交通アクセス
西小山
7分
武蔵小山
9分
設備・特徴
エアコン
バス・トイレ別
モニター付きインターホン
管理会社
株式会社バレッグス 賃貸管理部
Hokinawaとは
Hokinawaは仲介手数料0円のオンライン不動産サービスです。管理会社から直接届く最新の空室情報をリアルタイムで確認し、気に入った物件はダイレクトに申し込み。押し売りや無断での電話・メールによる営業は一切行っておりません。
仲介手数料 0円
通常1ヶ月分が不要
来店不要
オンライン完結
ダイレクト申し込み
気に入ったらそのまま手続き
エリア情報
東急目黒線の西小山駅は、品川区北西部で目黒区との境界に近い、住宅地の小さな拠点です。駅周辺は昔ながらの商店街や個人店が残る下町風情で、カフェや居酒屋が点在し日常の買い物や散歩に適した街並みです。目黒方面や都心へのアクセス路線としての役割を持ちながら、路地裏の小さな店先に地域の生活感が色濃く残っています。






