オープンレジデンシア鷹番
0
最終募集時の賃料
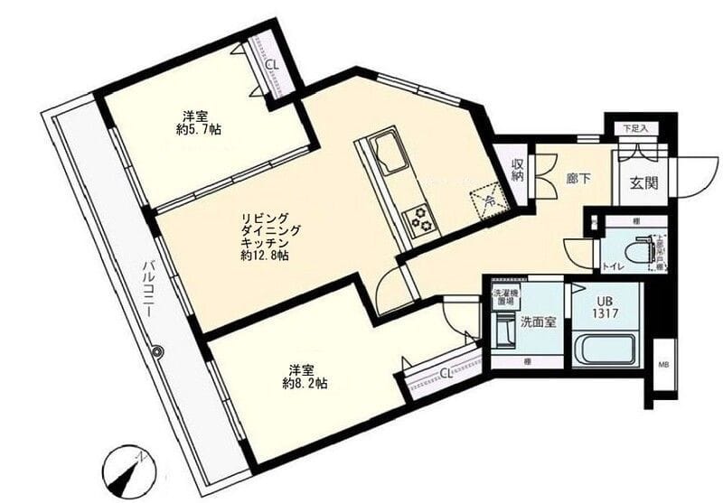
33万円
築7年
3LDK
70.2m²
東京都目黒区鷹番2丁目17-3
最終更新日: 2025年11月18日
交通アクセス
学芸大学
4分
設備・特徴
オートロック
エアコン
バス・トイレ別
室内洗濯機置き場
独立洗面台
浴室乾燥機
モニター付きインターホン
管理会社
株式会社リロケーション・ジャパン 留守宅
Hokinawaとは
Hokinawaは仲介手数料0円のオンライン不動産サービスです。管理会社から直接届く最新の空室情報をリアルタイムで確認し、気に入った物件はダイレクトに申し込み。押し売りや無断での電話・メールによる営業は一切行っておりません。
仲介手数料 0円
通常1ヶ月分が不要
来店不要
オンライン完結
ダイレクト申し込み
気に入ったらそのまま手続き
エリア情報
学芸大学駅は東急東横線の駅で、東京都目黒区南部にあり世田谷区との境に近い住宅・商業エリアに位置します。駅前には昔ながらの商店街や個人経営のカフェ、居酒屋が並び、日常の買い物や外食で賑わう街並みが特徴です。落ち着いた住宅街や小さなギャラリー、専門店が点在し、都心方面へのアクセス拠点として地域の生活に根づいています。





