ONE ROOF RESIDENCE TAMACHI(2LDK) (ワンルーフレジデンス田町)
1311
最終募集時の賃料
29.5万円
築3年
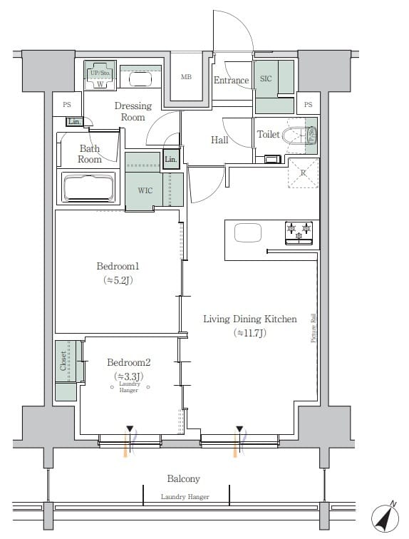
2LDK
44.5m²
東京都港区芝浦1丁目15-7
最終更新日: 2025年11月13日
交通アクセス
田町
7分
三田
8分
設備・特徴
2階以上
防犯カメラ
管理会社
清水総合開発株式会社
Hokinawaとは
Hokinawaは仲介手数料0円のオンライン不動産サービスです。管理会社から直接届く最新の空室情報をリアルタイムで確認し、気に入った物件はダイレクトに申し込み。押し売りや無断での電話・メールによる営業は一切行っておりません。
仲介手数料 0円
通常1ヶ月分が不要
来店不要
オンライン完結
ダイレクト申し込み
気に入ったらそのまま手続き
エリア情報
田町駅(山手線・京浜東北線、港区)は、品川と浜松町の間に位置し、三田や芝浦に接する都心の通勤拠点です。オフィス街とともに古くからの飲食店街やサラリーマン向けランチ店、仕事帰りの居酒屋が混在し、昼と夜で街の表情が変わります。埋立地のシーバーフロントや運河沿いの散策路が近く、オフィス風景と水辺の佇まいが共存するエリアです。







