ホーム

/

エリア検索

/

世田谷区

/

オークプレイス三軒茶屋

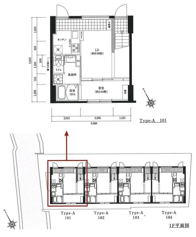
オークプレイス三軒茶屋

203

最終募集時の賃料

16.5万円

築4年
1LDK
30.4m²

東京都世田谷区上馬1丁目

東急田園都市線の路線アイコン三軒茶屋9

最終更新日: 2026年1月10日

交通アクセス

東急田園都市線の路線アイコン

三軒茶屋

9

東急田園都市線の路線アイコン

駒沢大学

11

東急世田谷線の路線アイコン

西太子堂

12

設備・特徴

2階以上
ペット相談可
オートロック
エアコン
バス・トイレ別
室内洗濯機置き場
2人入居可

管理会社

株式会社前田

エリア情報

三軒茶屋駅に住むという選択。便利さだけでは終わらない、街の熱量まで手に入る暮らし

三軒茶屋駅は、「渋谷に近いから便利」という一言では語りきれない街です。
東急田園都市線で都心へ軽快につながり、東急世田谷線で世田谷らしい住宅地へと自然に広がっていく。駅前には大型施設が集まり、少し路地に入れば個人店が密集する。しかも昼と夜とで、街の表情ははっきりと変わります。

この街の魅力は、機能性と雑多さが無理なく同居していることにあります。
買い物にも外食にも不自由しない一方で、再開発された街のような均質さはない。歩くたび、通る路地ごとに、店や人の空気がさりげなく変わる。三軒茶屋は、ただ「住みやすい」だけでなく、「街そのものを楽しみたい人」にしっくりくる生活拠点です。

三軒茶屋駅の立地とアクセス

使える路線は、東急田園都市線東急世田谷線です。
田園都市線で渋谷方面へ出やすいのはもちろん、世田谷線があることで、三軒茶屋は単なる都心通勤駅にとどまりません。周辺の住宅地とのつながりが強く、生活圏に広がりがあるのが、この駅らしさです。

特に魅力なのは、都心アクセスの速さと、駅周辺で日常が完結しやすいこと。
仕事帰りにスーパーへ寄る、軽く食事を済ませる、カフェでひと息つく、ジムに立ち寄る――そうした流れを無理なく組み立てられるため、生活のテンポが自然と整います。

その一方で、駅前は時間帯によってかなりにぎやかです。
静けさを最優先する人よりも、人の流れや街の活気を前向きに受け止められる人のほうが、三軒茶屋の良さを実感しやすいでしょう。

三軒茶屋の街並みと雰囲気

三軒茶屋を象徴しているのは、駅前の利便性と、裏路地に残る濃い個性の共存です。

ランドマークであるキャロットタワー周辺は、駅直結ならではの機能性が高く、日常使いしやすいエリアです。
一方、少し歩けば三軒茶屋らしい飲食店街や細い路地が広がり、チェーン店だけではない街の厚みが見えてきます。なかでも三角地帯周辺には、昔からの居酒屋、小さなカフェ、個性のある飲食店が多く、外食派にはかなり魅力的です。

この「整いすぎていない感じ」こそ、三軒茶屋の大きな価値です。
きれいに再編された街が好みの人にはやや雑然と映るかもしれませんが、そのぶん街に奥行きがあるとも言えます。毎日同じ道を歩いても飽きにくく、住んでからの発見が多い駅です。

家賃相場の目安

三軒茶屋駅周辺の家賃相場は、世田谷区内でもしっかり高めです。目安としては、以下の水準です。

  • ワンルーム・1K:10万~13万円前後
  • 1LDK:15万~22万円前後
  • ファミリー向け:23万~35万円前後

渋谷に近く、街としての人気も高いため、駅近・築浅・設備充実と条件がそろうほど賃料は上がりやすい傾向があります。
「便利で楽しい街に住みたい」という需要が強いエリアなので、相場を重視して探すなら、駅から少し離れた住宅地側や世田谷線沿線まで視野を広げるのが現実的です。

日常の買い物はかなり強い

三軒茶屋は、日々の買い物環境が非常に優秀です。
駅前での調達力が高く、忙しい人でも生活を回しやすいのが大きな強みです。

まず使いやすいのが、駅前の西友 三軒茶屋店
食料品をまとめて買いやすく、仕事帰りにも立ち寄りやすい存在です。加えて、東急ストア 三軒茶屋店はキャロットタワー内にあり、駅利用と自然に組み合わせやすいのが便利。さらに、オオゼキ 三軒茶屋店のような地域密着型スーパーもあり、価格や品ぞろえで使い分けがしやすい街です。

食料品だけでなく、生活用品をそろえやすいのも三軒茶屋の頼もしさです。
無印良品 三軒茶屋があるため、日用品の買い足しや収納用品の調達もしやすく、わざわざ都心の大型店まで出なくて済む場面が少なくありません。

「スーパーが一軒ある」ではなく、「複数の選択肢を、その日の動線に合わせて使い分けられる」。
この厚みが、三軒茶屋の生活利便性を支えています。

外食・カフェ環境は、東京でもかなり魅力的

三軒茶屋に住む価値のひとつは、外食の選択肢の豊かさにあります。
しかも、単に店数が多いだけではありません。チェーン店と個人店のバランスがよく、忙しい平日は手早く済ませ、時間のある日は店選びそのものを楽しむ――そんな暮らし方が自然に似合います。

駅前には、スターバックス コーヒー 三軒茶屋店のような定番の使いやすさもあります。
待ち合わせやちょっとした作業、帰宅前のひと休みなど、日常に組み込みやすい存在です。

ただ、三軒茶屋の本領はやはり個人店の多さにあります。
裏路地に入ると、気軽な居酒屋、センスのあるカフェ、肩肘張らない食堂などが自然に点在し、「今日はどこにしよう」と考える時間まで楽しくなる。外食中心でも飽きにくく、ひとりでも入りやすい店を見つけやすいのは、単身者にも共働き世帯にも大きなメリットでしょう。

文化施設が日常圏にある贅沢

三軒茶屋は、便利なだけの街ではありません。
日常の延長線上に文化施設があることが、この街に独特の品の良さを与えています。

駅直結の世田谷パブリックシアターは、演劇やダンス、音楽に触れやすい存在です。併設のシアタートラムもあり、仕事帰りや休日にふらっと舞台芸術へアクセスできる環境は、都内でもかなり恵まれています。
さらに生活工房では、暮らしや地域文化にまつわる展示や講座が行われており、三軒茶屋らしい「生活と文化の近さ」を感じられます。

住む街にこうした場所があると、休日の過ごし方は単調になりにくいものです。
ショッピングモール的な便利さとは別のかたちで、街への愛着につながっていきます。

公園と余白。にぎやかな街の中でちゃんと息が抜ける

三軒茶屋は駅前こそ密度の高い街ですが、少し視野を広げれば、息抜きできる場所もしっかりあります。

代表的なのが世田谷公園です。
散歩、軽い運動、子どもとの外遊びなどに使いやすく、日常の行動範囲にこうした公園があるのは大きなポイント。街に活気があるぶん、こうした“逃げ場”が近いことが、暮らしやすさにつながります。

ファミリー目線では、こどものひろば公園の存在も見逃せません。
住宅地側で使いやすく、子どもを遊ばせる場所の選択肢があることで、三軒茶屋の印象は「大人向けの街」だけにとどまりません。

医療・日常メンテナンスの安心感

駅周辺で医療機関にアクセスしやすいことも、住むうえでは大切な要素です。
三軒茶屋第一病院が生活圏にあるため、いざというときの安心感があります。

また、運動習慣をつくりやすい街でもあります。
ティップネス三軒茶屋店のような総合型ジムがあり、仕事帰りに立ち寄りやすいのは都市生活と相性の良いポイントです。外食の誘惑が多い街だからこそ、健康管理の選択肢も身近に用意されています。

学生街としての一面と、街の国際性

三軒茶屋周辺は、学生のいる街でもあります。
昭和女子大学が駅近くにあり、隣接するテンプル大学ジャパンキャンパスの存在によって、駅周辺にはほどよい国際色があります。さらに日本大学 三軒茶屋キャンパスも徒歩圏にあり、若い世代の流れが街に活気を加えています。

この環境は、単に学生が多いという話にとどまりません。
カフェや飲食店の層の厚さ、街に漂う軽やかな空気、保守的すぎない雰囲気にもつながっています。教育環境を重視する視点から見ても、文教施設が近いことは三軒茶屋の安心材料のひとつです。

こんな人に三軒茶屋は向いている

三軒茶屋は、次のような人と特に相性のいい街です。

  • 渋谷方面へのアクセスを重視したい人
  • 外食やカフェ利用が多く、街歩きも楽しみたい人
  • 便利な駅前と、少し落ち着いた住宅地の両方を使いたい人
  • 文化施設が近い暮らしに魅力を感じる人
  • 単身者・DINKsで、生活の楽しさにもお金をかけたい人

逆に、完全な静けさや家賃の割安感を最優先する人には、少し合わない可能性があります。
三軒茶屋は「安くて無難」な街ではなく、「高くてもこの街がいい」と思える人に選ばれるエリアです。

三軒茶屋勤務なら、どこに住むのが現実的?

三軒茶屋に通う前提で住む場所を考えるなら、駅そのものだけでなく、周辺エリアの性格も見ておきたいところです。

三軒茶屋

職住近接を最優先するなら、やはり駅徒歩圏が本命です。
深夜帯の帰宅が多い人、外食や買い物をフル活用したい人には圧倒的に便利。家賃は張りますが、時間を買う感覚で住む価値があります。

西太子堂

世田谷線で三軒茶屋のすぐ隣。
駅前の熱気から少し距離を置きつつ、三軒茶屋の利便性を日常的に使えるのが魅力です。にぎやかさは好きでも、家の周りは少し落ち着いていてほしい人に向いています。

若林

近さのわりに住宅地として穏やかで、自転車移動もしやすいエリアです。
三軒茶屋へ出やすいのに、帰宅すると空気が変わるのが若林の良さ。単身者だけでなく、二人暮らしでも検討しやすい選択肢です。

松陰神社前

個人店のある落ち着いた街並みが魅力です。
三軒茶屋ほどの密度や騒がしさは求めないけれど、街の個性はほしい――そんな人にちょうどいいエリア。世田谷線沿線らしい穏やかさがあり、暮らしの満足度を高めやすい場所です。

世田谷

住宅地としての安定感があり、三軒茶屋まで無理なく通えます。
毎日の通勤負担を抑えつつ、もう少し生活の落ち着きを確保したい人におすすめです。ファミリー目線でも検討しやすい立地です。

駒沢大学

田園都市線で一駅。
通勤のしやすさは非常に高く、日常使いの店もそろっていて、さらに駒沢公園方面の使い勝手も魅力です。三軒茶屋の便利さと、もう少し整った住宅地感の両方を求める人に合います。

池尻大橋

都心寄りの利便性を重視するなら有力です。
三軒茶屋勤務にも近く、渋谷や中目黒方面とも相性がいいため、行動範囲が広い人にはとくに便利。街の雰囲気は、三軒茶屋よりも都会的です。

三軒茶屋駅周辺で部屋探しをするときのポイント

三軒茶屋で失敗しにくい部屋探しをするなら、次の視点が重要です。

1. 駅距離より「どちら側に住むか」を見る

同じ三軒茶屋駅徒歩圏でも、駅前のにぎわいに近いか、住宅地側に入るかで体感はかなり変わります。
夜の雰囲気、飲食店の密度、人通りは、現地で確認しておくのがおすすめです。

2. 外食中心か、自炊中心かで満足度が変わる

三軒茶屋は外食に強い街ですが、自炊派にとってもスーパーの選択肢が豊富です。
自分がどちら寄りの生活かをはっきりさせておくと、街の便利さをより実感しやすくなります。

3. 世田谷線沿線まで広げると、ぐっと探しやすくなる

三軒茶屋に住みたい気持ちはあっても、予算や静けさの条件で悩む人は少なくありません。
その場合は、西太子堂・若林・松陰神社前あたりまで広げると、三軒茶屋の恩恵を受けながら、より自分に合う住環境を見つけやすくなります。

まとめ

三軒茶屋駅は、都心近接の便利さだけで評価するには惜しい街です。
駅前のにぎわい、裏路地の面白さ、個人店の厚み、文化施設の存在感――それらがひとつの日常圏に収まっているからこそ、三軒茶屋の暮らしには独特の熱があります。

一見すると雑多で、にぎやかで、少しせわしない。
けれど、その雑多さこそが、三軒茶屋をただの「便利な駅」で終わらせません。住むほどにお気に入りの店が増え、歩く道に愛着が生まれ、街の温度が暮らしの輪郭になっていく。三軒茶屋とは、そういうふうに関係が深まっていく街です。

家賃は安くありません。
それでも、通勤効率、買い物のしやすさ、外食の充実、文化の近さまで含めて考えれば、「三軒茶屋を選ぶ理由」は十分にあります。

便利さだけでなく、街の表情や空気感まで含めて住まいを選びたい。
そんな人にとって、三軒茶屋駅はきわめて有力な候補になるはずです。

ブログ記事を全文で読む

同じ建物の他の部屋
1

募集終了の部屋

似た条件の物件

Hokinawaとは

Hokinawaは仲介手数料0円のオンライン不動産サービスです。管理会社から直接届く最新の空室情報をリアルタイムで確認し、気に入った物件はダイレクトに申し込み。押し売りや無断での電話・メールによる営業は一切行っておりません。

仲介手数料 0円

通常1ヶ月分が不要

来店不要

オンライン完結

ダイレクト申し込み

気に入ったらそのまま手続き

エリア情報

三軒茶屋は東急田園都市線と東急世田谷線が交差する世田谷区の駅で、キャロットタワーがランドマークとしてそびえる街の玄関口的存在です。茶沢通り沿いの賑やかな商店街と、細い路地に残る昔ながらの飲み屋や個人経営の喫茶店が混在し、昼は買い物やカフェ利用、夜は小さな居酒屋やバーでにぎわいます。世田谷線が近隣の住宅地をつなぎ、都市のアクセスとローカルな生活文化が交差する独特の街並みが感じられます。