オーキッドレジデンス上野稲荷町
402
最終募集時の賃料
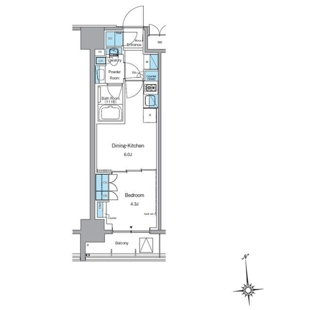
14万円
築6年
1K
25.6m²
南西向き
東京都台東区東上野3丁目5-4
最終更新日: 2026年4月10日
交通アクセス
稲荷町
3分
上野
7分
設備・特徴
2階以上
ペット相談可
オートロック
エアコン
バス・トイレ別
室内洗濯機置き場
浴室乾燥機
モニター付きインターホン
防犯カメラ
管理会社
東急住宅リース株式会社 本店
Hokinawaとは
Hokinawaは仲介手数料0円のオンライン不動産サービスです。管理会社から直接届く最新の空室情報をリアルタイムで確認し、気に入った物件はダイレクトに申し込み。押し売りや無断での電話・メールによる営業は一切行っておりません。
仲介手数料 0円
通常1ヶ月分が不要
来店不要
オンライン完結
ダイレクト申し込み
気に入ったらそのまま手続き
エリア情報
稲荷町駅(東京メトロ銀座線)は台東区の下町的な住宅地と小さな商店街が混ざるエリアに位置し、上野や浅草へのアクセスに便利な地域の拠点です。駅周辺は狭い路地の飲食店や老舗の商店、小さな稲荷社などが点在し、観光地の喧騒から一歩入った下町の風情が残っています。地元の日常を感じられる居酒屋や惣菜店が並び、短い散策で昔ながらの風景に出合えます。









