杜の家
2F
最終募集時の賃料
15万円
築64年
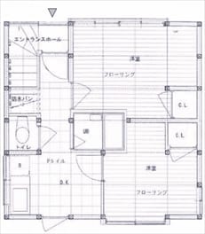
2DK
28.1m²
東京都千代田区神田三崎町2丁目8-9
最終更新日: 2026年1月16日
交通アクセス
水道橋
2分
水道橋
3分
神保町
7分
設備・特徴
2階以上
管理会社
株式会社 高商
Hokinawaとは
Hokinawaは仲介手数料0円のオンライン不動産サービスです。管理会社から直接届く最新の空室情報をリアルタイムで確認し、気に入った物件はダイレクトに申し込み。押し売りや無断での電話・メールによる営業は一切行っておりません。
仲介手数料 0円
通常1ヶ月分が不要
来店不要
オンライン完結
ダイレクト申し込み
気に入ったらそのまま手続き
エリア情報
水道橋駅はJR中央・総武線と都営三田線が交差する駅で、千代田区と文京区の境界に位置します。東京ドームシティや後楽園に近く、イベント時ににぎわう一方で、大学や専門学校、学習塾、昔ながらの飲食店や商店が混在する街並みが特徴です。神田川や水道橋の地名由来を感じさせる風景も残り、都心の主要エリアと下町風情が接する生活拠点になっています。






