ホーム

/

エリア検索

/

目黒区

/

メゾン・ド・セリュリエ

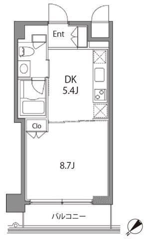
メゾン・ド・セリュリエ

201

最終募集時の賃料

18万円

築25年
1LDK
39.4m²

東京都目黒区上目黒2丁目6-10

東急東横線の路線アイコン中目黒2

最終更新日: 2026年1月17日

交通アクセス

東急東横線の路線アイコン

中目黒

2

設備・特徴

2階以上
オートロック
バス・トイレ別
室内洗濯機置き場

管理会社

鈴与三和建物株式会社 横浜課

エリア情報

中目黒駅に住む魅力とは?おしゃれだけで終わらない、日常の質が高い街

中目黒駅と聞くと、まず思い浮かぶのは目黒川沿いの桜や、感度の高いカフェ、洗練された街の空気かもしれません。東京のなかでも“憧れ”のイメージが強い駅だけに、華やかではあっても、暮らすには少し気を張る街だと感じる人もいるでしょう。

けれど実際の中目黒は、見た目の洒落感だけで語るには惜しい街です。駅前には日常使いしやすいスーパーや書店、図書館が集まり、少し歩けば静かな住宅地や公園もある。都心へのアクセスに優れながら、駅を降りた先の暮らしは意外なほど落ち着いています。

通勤の利便性は譲れない。街の雰囲気にも妥協したくない。けれど生活が不便なのは困る――。そんな条件を高い水準で満たしてくれるのが、中目黒駅です。

中目黒駅の立地とアクセス

中目黒駅には東急東横線東京メトロ日比谷線が乗り入れています。東横線を使えば渋谷方面へ出やすく、横浜方面への移動もスムーズ。日比谷線では恵比寿・六本木・霞ケ関・銀座方面へもつながりやすく、都心勤務との相性は非常に良好です。

中目黒の強みは、単に都心に近いことだけではありません。渋谷や恵比寿のような大規模ターミナルに過度に依存せず、それでいて主要エリアへ自然につながること。通勤のしやすさと、駅を降りたあとの街の落ち着きが両立しているところに、この駅らしい価値があります。

中目黒の街並みと住み心地

駅周辺は人通りが多く、飲食店やカフェ、物販店が集まっています。とくに目黒川沿いから上目黒、青葉台方面にかけては、歩くだけでも気分が上がるエリアです。中目黒 蔦屋書店のように、買い物そのものだけでなく、そこにいる時間まで心地よい場所が日常圏にあるのは、この街ならではの魅力でしょう。

一方で、賑わいは駅前に比較的まとまっています。少し離れれば空気は住宅地へと切り替わり、想像以上に静かです。中目黒は「繁華街に住む」というより、「上質な都市生活のすぐそばで暮らす」という感覚に近い街です。

また、駅前再開発の核でもある中目黒GTの存在によって、人気スポットとしての華やかさだけでなく、生活インフラもきちんと整っています。オフィス、住宅、店舗、図書館などが集まり、駅前の使い勝手をしっかり支えています。

買い物環境はどうか

中目黒は、都心の人気エリアでありながら、毎日の買い物に困りにくい街です。

駅周辺では、東急ストア 中目黒本店が日常使いの中心になりやすく、仕事帰りにも立ち寄りやすいのが便利です。食材や日用品を無理なく揃えやすく、忙しい一人暮らしにもなじみます。
品質を重視したい日にはプレッセ 中目黒店が使いやすく、少し良いものを選びたいときにも対応しやすい。この振れ幅の広さにも、中目黒らしさがあります。

外食のイメージが先行しがちな街ですが、自炊派でも十分に暮らしやすい。毎日の生活をきちんと回したい人にとって、見逃せないポイントです。

カフェ・外食好きにはかなり強い

中目黒の個性がもっとも表れやすいのは、やはり飲食の充実度です。チェーン店だけでなく個人店も含め、選択肢にしっかり表情があります。

ランドマーク的な存在として知られるのが、目黒川沿いのスターバックス リザーブ® ロースタリー 東京。観光的な印象もありますが、街のブランド感を押し上げる存在であり、周辺の散歩コースや休日の過ごし方に自然と組み込めるスポットです。

駅のすぐ近くでは、スターバックスコーヒー 中目黒 蔦屋書店が実用的。待ち合わせや読書、軽い作業などに使いやすく、「駅前にこういう場所があると助かる」と感じやすい一軒です。

中目黒の良さは、店の数が多いことだけではありません。店に入らなくても、街全体に“寄り道しやすさ”があること。仕事帰りに一杯、休日にブランチ、散歩の途中にコーヒー――そんな流れがごく自然に成立します。

自然と散歩環境

中目黒といえば目黒川。春の桜で知られていますが、この街の価値は花見の時期だけではありません。川沿いを歩けること自体が、日々の気分転換になります。都市の真ん中にありながら、水辺と緑が視界に入る心地よさはやはり大きな魅力です。

さらに落ち着いた時間を求めるなら、西郷山公園菅刈公園も心強い存在です。青葉台側へ足をのばすと、駅前の賑わいとは異なる穏やかな空気が流れています。和館や庭園の雰囲気を感じられる菅刈公園では、このエリアが持つ住宅地としての深みも実感しやすいでしょう。

もう少し広がりのある公園を日常に取り入れたいなら、中目黒公園も使いやすい存在です。散歩や軽いリフレッシュにちょうどよく、都心立地のわりに“歩く楽しさ”がしっかり残っているのも、中目黒の魅力です。

子育て・教育環境

中目黒は単身者やDINKsのイメージが強い一方で、教育施設の面でも一定の安心感があります。地域の学区を支える目黒区立中目黒小学校、広い範囲の通学区域を持つ目黒区立目黒中央中学校があり、ファミリーが生活基盤を置く街としても現実的です。

私立では目黒日本大学中学校・高等学校、大学資源として目黒日本大学が周辺にあり、学生の気配が街にほどよい活気をもたらしています。

ただし、中目黒のファミリー向け住宅は価格帯がしっかり高めです。教育環境や都心アクセス、街の魅力を重視して選ぶエリアであり、広さを優先したい場合は周辺駅も含めて比較すると検討しやすくなります。

医療面の安心感

近隣には東京共済病院があり、中目黒エリアの総合病院として頼れる存在です。さらに恵比寿寄りには厚生中央病院もあります。人気エリアでありながら、医療アクセスが弱くないのは大きな安心材料です。

一人暮らしでも、体調を崩したときに総合病院へつながりやすい街は、住みやすさに直結します。ファミリーにとっても、こうした基盤の有無は見逃せません。

文化的な厚みもある街

中目黒は、流行だけで成立している街ではありません。文化施設が日常の延長線上にあることも、この街の魅力です。

中目黒駅前図書館が駅前にあるのは非常に便利で、通勤帰りや休日のすき間時間にも立ち寄りやすい環境です。加えて、郷さくら美術館のような施設が身近にあることで、街の空気が単なる商業エリアで終わりません。こうした文化の選択肢は、住み始めてからじわじわと暮らしの満足度を押し上げてくれます。

家賃相場と向いている人

中目黒の賃貸相場は、都内でもかなり高めの部類です。

  • ワンルーム・1Kでおおむね12万~18万円前後
  • 1LDKで18万~30万円前後
  • ファミリータイプはかなり高額帯まで視野に入るエリア

この価格帯のため、家賃を抑えることを最優先する人には向きません。反対に、通勤時間を短くしたい人、街の雰囲気を大切にしたい人、休日も近場で満足度高く過ごしたい人には、家賃以上の価値を感じやすい駅です。

とくに相性がいいのは、次のような人です。

  • 恵比寿・六本木・銀座方面へ通勤しやすい場所を探している人
  • 飲食店やカフェの充実度を日常の楽しみとして重視する人
  • 都心に近くても、住宅地としての落ち着きは欲しい人
  • 街のブランド感や雰囲気にお金をかける価値を感じる人

中目黒勤務なら、どこに住むのが現実的?

中目黒そのものは魅力的ですが、予算や静けさとのバランスを考えると、周辺駅も有力です。中目黒勤務を前提に、現実的に住みやすいエリアを挙げるなら次のあたりでしょう。

祐天寺

中目黒の隣駅で、通勤距離の短さは大きな魅力です。街の空気は中目黒より落ち着いており、住宅地としての静けさが出やすいのが特徴。中目黒の雰囲気は好きだけれど、駅前の賑わいからは少し距離を置きたい人に向いています。

学芸大学

商店街の強さが光る駅です。スーパー、飲食、日用品の買い回りがしやすく、暮らしの実用性が高いエリア。中目黒よりも生活密着型で、毎日の便利さを重視する人におすすめです。

都立大学

落ち着いた住宅地として安定感があり、長く住む視点で見やすい駅です。派手さは控えめですが、そのぶん住環境の整い方に安心感があります。喧騒を避けつつ東横線沿線に住みたい人には有力候補です。

自由が丘

買い物やカフェ、雑貨店が好きな人にはやはり魅力的な街です。ブランド力が高く、休日の過ごし方まで含めて満足度が出やすいエリア。中目黒に通いやすく、生活の楽しさも譲りたくない人に合います。

池尻大橋

路線は異なりますが、中目黒との距離が近く、徒歩・自転車・バスも含めて生活動線を組みやすいのが強みです。都心アクセスも総合的に良く、勤務地が中目黒なら十分検討に値します。東横線にこだわらない人には、相性のよい選択肢です。

武蔵小山・西小山

中目黒より生活コストとのバランスを取りやすく、商店街の使いやすさも魅力です。毎日の買い物や外食に強く、実生活の便利さを重視する人に向いています。乗り換えはあるものの、家賃と利便性の折り合いをつけたい人には現実的です。

中目黒駅周辺の注意点

魅力の多い中目黒ですが、住む前に知っておきたい点もあります。

まず、家賃はしっかり高いこと。築年数や駅距離をある程度妥協しても、人気の高さが賃料に反映されやすいエリアです。

次に、桜シーズンや休日はかなり人が増えること。とくに目黒川周辺は混雑しやすく、静かな日常を最優先するなら、川沿いから少し離れた物件のほうが住みやすく感じることがあります。

また、駅周辺は飲食店が多く便利な反面、落ち着いて暮らしたい場合は、上目黒・青葉台・中目黒の住宅地側まで視野を広げて探すのがコツです。同じ中目黒駅利用でも、場所によって住み心地はかなり変わります。

総評

中目黒駅は、東京でも指折りの人気を誇る駅でありながら、その魅力は単なる“おしゃれさ”にとどまりません。都心への軽やかなアクセス、駅前の利便性、住宅地としての落ち着き、そして目黒川や公園がもたらす余白。駅の華やかさと日常の実用性が、無理なくひとつの生活圏に収まっています。

家賃のハードルはたしかにあります。それでも、通勤時間を短くしながら、街で過ごす時間そのものの質を高めたい人にとって、中目黒は十分にその価値を返してくれる駅です。住まい選びで「どこに住むか」だけでなく、「この街でどんな毎日を送りたいか」を大切にするなら、中目黒は今も有力な候補であり続けます。

ブログ記事を全文で読む

似た条件の物件

Hokinawaとは

Hokinawaは仲介手数料0円のオンライン不動産サービスです。管理会社から直接届く最新の空室情報をリアルタイムで確認し、気に入った物件はダイレクトに申し込み。押し売りや無断での電話・メールによる営業は一切行っておりません。

仲介手数料 0円

通常1ヶ月分が不要

来店不要

オンライン完結

ダイレクト申し込み

気に入ったらそのまま手続き

エリア情報

中目黒駅は東急東横線と東京メトロ日比谷線が交差する目黒区の駅で、渋谷や都心方面への乗り換え・アクセスに便利な立地です。目黒川の桜並木が春の風物詩で、川沿いにはカフェやセレクトショップ、飲食店が立ち並び散策スポットとして知られています。高架下の商店街や路地裏の居酒屋、ギャラリーが混在し、日常使いの店と週末の散歩コースが入り交じる街並みが特徴です。