マハール駒込
303
15.9万円
仲介手数料0円
築34年
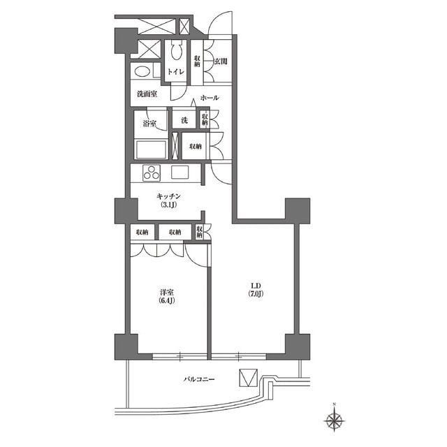
2DK
49.6m²
南西向き
東京都豊島区駒込1丁目7-3
掲載開始日: 2026年3月11日
(1ヶ月前)
月額費用
家賃 | 15.9万円 |
管理費・共益費 | 1万円 |
月額合計 | 16.9万円 |
|---|
初期費用
仲介手数料 | 0円 |
敷金 | 16.9万円 |
礼金 | 0円 |
保証料 | 8.45万円 |
合計金額(概算) | 25.4万円 |
|---|
通常、鍵交換・クリーニング・火災保険・安心サポートなどの追加費用が別途発生します。詳細はお問い合わせください。
入居情報
入居開始予定日
2026年4月21日以降
掲載開始日
2026年3月11日
(1ヶ月前)
交通アクセス
駒込
4分
設備・特徴
2階以上
オートロック
エアコン
バス・トイレ別
室内洗濯機置き場
独立洗面台
浴室乾燥機
管理会社
三井不動産レジデンシャルリース株式会社 賃本三部
Hokinawaとは
Hokinawaは仲介手数料0円のオンライン不動産サービスです。管理会社から直接届く最新の空室情報をリアルタイムで確認し、気に入った物件はダイレクトに申し込み。押し売りや無断での電話・メールによる営業は一切行っておりません。
仲介手数料 0円
通常1ヶ月分が不要
来店不要
オンライン完結
ダイレクト申し込み
気に入ったらそのまま手続き
エリア情報
駒込駅(JR山手線・東京メトロ南北線)は文京区・豊島区・北区の接点付近にある駅で、山手線の環状ルートと南北線の地下鉄ネットをつなぐ役割を担っています。駅周辺は六義園の落ち着いた日本庭園風景が近くに広がり、昭和の面影を残す商店街や蕎麦店、和菓子店が混在する生活感のある街並みが特徴です。季節の植栽や路地の散策を楽しむ人々が見られ、日常の買い物や短い散歩に便利なエリアです。






