クレスト水天宮前
301
最終募集時の賃料
7.2万円
築7年
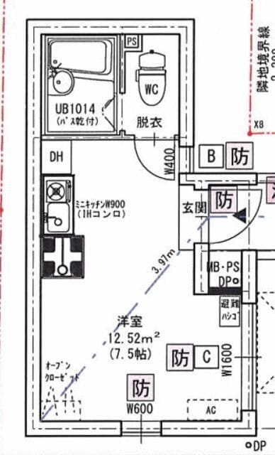
1R
15.1m²
東京都江東区佐賀1丁目12-6
最終更新日: 2026年2月3日
交通アクセス
水天宮前
7分
門前仲町
11分
茅場町
16分
設備・特徴
2階以上
オートロック
エアコン
バス・トイレ別
室内洗濯機置き場
2人入居可
管理会社
株式会社Diff
Hokinawaとは
Hokinawaは仲介手数料0円のオンライン不動産サービスです。管理会社から直接届く最新の空室情報をリアルタイムで確認し、気に入った物件はダイレクトに申し込み。押し売りや無断での電話・メールによる営業は一切行っておりません。
仲介手数料 0円
通常1ヶ月分が不要
来店不要
オンライン完結
ダイレクト申し込み
気に入ったらそのまま手続き
エリア情報
水天宮前駅は東京メトロ半蔵門線の駅で、中央区の水天宮周辺に位置し江東区に近い境界エリアにあります。駅名の由来である水天宮が街のランドマークで、安産祈願の参拝客や祭礼の風景が地域の表情をつくっています。周辺は隅田川や運河に近い下町風情の残る街並みで、老舗や小さな飲食店が並ぶ一方でオフィスやホテルも混在し、通勤と日常の生活が交差するエリアです。







