クレイシア亀戸
804
9.3万円
仲介手数料0円
築14年
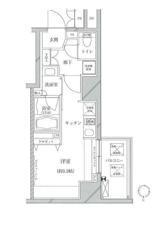
1K
25.7m²
南向き
東京都江東区亀戸2丁目18-14
掲載開始日: 2026年3月7日
(1ヶ月前)
月額費用
家賃 | 9.3万円 |
管理費・共益費 | 1.2万円 |
月額合計 | 10.5万円 |
|---|
初期費用
仲介手数料 | 0円 |
敷金 | 10.5万円 |
礼金 | 10.5万円 |
保証料 | 5.25万円 |
合計金額(概算) | 26.3万円 |
|---|
通常、鍵交換・クリーニング・火災保険・安心サポートなどの追加費用が別途発生します。詳細はお問い合わせください。
入居情報
入居開始予定日
2026年5月11日以降
掲載開始日
2026年3月7日
(1ヶ月前)
交通アクセス
亀戸
2分
設備・特徴
2階以上
ペット相談可
オートロック
エアコン
バス・トイレ別
室内洗濯機置き場
浴室乾燥機
防犯カメラ
管理会社
プロパティエージェント株式会社
Hokinawaとは
Hokinawaは仲介手数料0円のオンライン不動産サービスです。管理会社から直接届く最新の空室情報をリアルタイムで確認し、気に入った物件はダイレクトに申し込み。押し売りや無断での電話・メールによる営業は一切行っておりません。
仲介手数料 0円
通常1ヶ月分が不要
来店不要
オンライン完結
ダイレクト申し込み
気に入ったらそのまま手続き
エリア情報
亀戸駅は江東区にあるJR総武線の駅で、東武亀戸線の起点としても機能する地域の交通拠点です。駅周辺は商店街や飲食店が密集した庶民的な街並みが続き、特に亀戸餃子などのローカルグルメや居酒屋がにぎわいます。近くには亀戸天神社のような歴史的な寺社や運河沿いの路地が残り、買い物や散策に向く下町らしい雰囲気が色濃く出ています。














