クレイシアIDZ祐天寺
801
12.2万円
仲介手数料0円
築3年
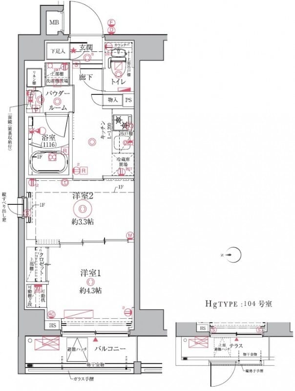
2K
25.5m²
東京都世田谷区下馬1丁目47-25
掲載開始日: 2026年3月18日
(4週間前)
月額費用
家賃 | 12.2万円 |
管理費・共益費 | 1.2万円 |
月額合計 | 13.4万円 |
|---|
初期費用
仲介手数料 | 0円 |
敷金 | 13.4万円 |
礼金 | 13.4万円 |
保証料 | 6.7万円 |
合計金額(概算) | 33.5万円 |
|---|
通常、鍵交換・クリーニング・火災保険・安心サポートなどの追加費用が別途発生します。詳細はお問い合わせください。
入居情報
入居開始予定日
即入居可
掲載開始日
2026年3月18日
(4週間前)
交通アクセス
祐天寺
13分
設備・特徴
2階以上
ペット相談可
オートロック
エアコン
バス・トイレ別
室内洗濯機置き場
浴室乾燥機
防犯カメラ
2人入居可
管理会社
プロパティエージェント株式会社
似た条件の物件
Hokinawaとは
Hokinawaは仲介手数料0円のオンライン不動産サービスです。管理会社から直接届く最新の空室情報をリアルタイムで確認し、気に入った物件はダイレクトに申し込み。押し売りや無断での電話・メールによる営業は一切行っておりません。
仲介手数料 0円
通常1ヶ月分が不要
来店不要
オンライン完結
ダイレクト申し込み
気に入ったらそのまま手続き
エリア情報
東急東横線の祐天寺駅は、目黒区南部で世田谷区との境に近い住宅街の玄関口です。駅名の由来になった祐天寺の寺院風情を残しつつ、独立系のカフェやパン屋、昔ながらの商店や居酒屋が並ぶ落ち着いたまち並みが特徴です。中目黒や学芸大学ほどの賑わいはなく、日常使いの店と生活感が混じるローカルな雰囲気が魅力で、都心方面へのアクセスにも便利です。





