ケーディーエックスレジデンス上野毛
402
11.5万円
仲介手数料0円
築10年
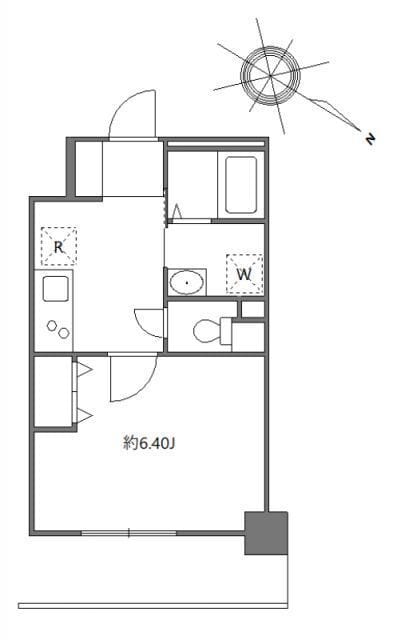
1K
25.8m²
南西向き
東京都世田谷区野毛3丁目2-11
掲載開始日: 2026年3月31日
(2週間前)
申請・内見予約・メッセージにはログインが必要です。最短1分で完了。
月額費用
家賃 | 11.5万円 |
管理費・共益費 | 1.2万円 |
月額合計 | 12.7万円 |
|---|
初期費用
仲介手数料 | 0円 |
敷金 | 12.7万円 |
礼金 | 25.4万円 |
保証料 | 6.35万円 |
合計金額(概算) | 44.5万円 |
|---|
通常、鍵交換・クリーニング・火災保険・安心サポートなどの追加費用が別途発生します。詳細はお問い合わせください。
入居情報
入居開始予定日
要確認
掲載開始日
2026年3月31日
(2週間前)
交通アクセス
上野毛
7分
等々力
14分
設備・特徴
2階以上
オートロック
エアコン
バス・トイレ別
室内洗濯機置き場
浴室乾燥機
モニター付きインターホン
管理会社
株式会社S-FITパートナーズ
Hokinawaとは
Hokinawaは仲介手数料0円のオンライン不動産サービスです。管理会社から直接届く最新の空室情報をリアルタイムで確認し、気に入った物件はダイレクトに申し込み。押し売りや無断での電話・メールによる営業は一切行っておりません。
仲介手数料 0円
通常1ヶ月分が不要
来店不要
オンライン完結
ダイレクト申し込み
気に入ったらそのまま手続き
エリア情報
上野毛駅は東急大井町線の世田谷区側にある住宅地の駅で、坂と緑が混ざる落ち着いた街並みが特徴です。駅前には小さな商店やカフェ、パン屋などが点在し、地域の日常が感じられる生活感のあるエリアです。二子玉川方面や大井町方面へ向かう路線の一部として、周辺住民の普段使いの拠点になっています。









